Große Kellerlagerräume mit geräumigen Büroeinheiten und Stellplätzen!

28219 Bremen, Bürofläche zur Miete

Energieausweis

  • Energieausweistyp
    Verbrauchs­ausweis
  • Ausstellungsdatum
    ab dem 1.5.2014
  • Gültig bis
    17.12.2025
  • Gebäudeart
    Nichtwohngebäude
  • Baujahr lt. Energieausweis
    1963
  • Primärenergieträger
    Öl
  • Endenergie­verbrauch Strom
    1,50 kWh/(m²·a)
  • Endenergie­verbrauch Wärme
    151,20 kWh/(m²·a)
0 25 50 75 100 125 150 175 200 225 250+ H G F E D C B A A+ H G F E D C B A A+ Endenergieverbrauch Strom 1,50 kWh/(m²·a) Endenergieverbrauch Wärme 151,20 kWh/(m²·a)

Objektdaten

  • Objekt ID
    KO002M
  • Objekttypen
    Büro/Praxis, Bürofläche
  • Adresse
    (Bremen-Walle/Gröpelingen/Oslebshausen)
    28219 Bremen
    Bremen
  • Etage
    EG
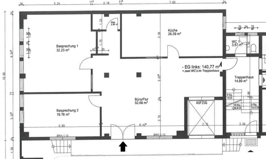
  • Bürofläche ca.
    140 m²
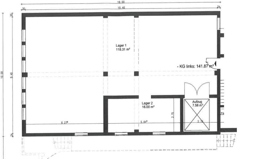
  • Lagerfläche ca.
    141 m²
  • Zimmer
    0,0
  • Schlafzimmer
    0,0
  • Badezimmer
    0,0
  • Baujahr
    1963
  • Verfügbar ab
    27.02.2026
  • Stellplatz:
    4 Stellplätze
  • Mieter­provision (gewerblich)
    Im Erfolgsfall sind vom Vermieter 3,57 Monatskaltmieten inkl. MwSt. zu zahlen!
  • Kaution
    2.200,00 EUR
  • Kaltmiete
    1.100,00 EUR
  • Nettokaltmiete
    1.100,00 EUR
  • Summe Miete netto
    1.100,00 EUR
  • Betriebskosten brutto
    700,00 EUR
  • Warmmiete
    1.800,00 EUR (Heizkosten enthalten)

Ausstattung / Merkmale

  • Gäste-WC
  • Keller
  • Lastenaufzug
  • Stellplatz

Objekt­beschreibung

Beschreibung

Im Bremer Ortsteil Osterfeuerberg, direkt an der Zufahrt zur Bundesstraße (B6), können wir Ihnen derzeit auf einem Gewerbegrundstück dieses ca. 140 m² große Büro mit ca. 141 m² Kellerlager anbieten. Das Gebäude wurde 1963 erbaut und bis heute ist es ein Ort, wo sich immer mehrere Gewerbetreibende unterschiedlicher Geschäftsfelder ansiedeln.

Die Gewerbefläche liegt im Hochparterre- und Kellergeschoss und ist von einer Rampe mit Treppenaufgang zu erreichen. Über eine doppelflügelige Eingangstür ist die Bürofläche mit ca. 140 m² im Hochparterre zu erreichen. Hier werden Sie von einem ca. 52 m² großen Empfangs-/Großraumbüro empfangen. Von diesem sind zwei weitere Büroräume mit großen Fensterfronten sowie ein separater Server- oder Archivraum zu erreichen. Ihnen und Ihren Mitarbeitern steht außerdem ein ca. 26 m² großer Aufenthaltsraum mit Einbauküche zur Verfügung.

Die Fläche ist mit einem gepflegten Nadelfilzteppichboden und Deckenbeleuchtung ausgestattet. Eine EDV-Verkabelung ist vorhanden. Mit einer Internetgeschwindigkeit von bis zu 1.000 MBit/s können Sie hier problemlos Ihrer Bürotätigkeit nachgehen.

Über das Treppenhaus sowie dem Lastenaufzug gelangen Sie in den Kellerbereich, in dem sich die Lagerfläche von insgesamt rund 141 m² Größe befindet. Diese verteilt sich auf 2 Lagerräume. Durch die Kellerfenster werden die Flächen angenehm beleuchtet – trotz der Lage im Untergeschoss kann hier das warme Tageslicht empfangen werden.

Vor dem Büro stehen Ihnen Pkw-Stellplätze für Kunden oder den Eigengebrauch zur Verfügung. Diese können für je € 25,- zusätzlich angemietet werden.

Zögern Sie nicht, uns für weitere Informationen oder eine Besichtigung zu kontaktieren. Wir freuen uns darauf!

Ausstattung

- 1 Großraumbüro/ Empfangsbereich
- 2 separate Büroräume
- 1 Archiv oder Serverraum
- Aufenthaltsraum mit Küchenzeile
- Nadelfilzteppich
- Rasterdecke mit integrierter Beleuchtung
- Kabelkanäle mit CAT 7 Datenkabel
- Internetverbindung bis 1.000 MBit/s
- WCs im Treppenhaus
- Außenrollläden
- Lastenaufzug im EG und Keller
- 2 große Lagerräume im Keller
- Betonboden
- Gaszentralheizung
- Durchlauferhitzer
- bis zu 4 Pkw-Stellplätze nach Absprache

Sonstige Informationen

Es liegt ein Energieverbrauchsausweis vor.
Dieser ist gültig bis 17.12.2025.
Endenergieverbrauch für die Wärme beträgt 151.20 kwh/(m²*a).
Endenergieverbrauch für den Strom beträgt 1.50 kwh/(m²*a).
Wesentlicher Energieträger der Heizung ist Öl.

Die Fläche kann als Büro, Lager, und/oder Werkstatt genutzt werden. Eine andere Nutzung ist leider nicht möglich.

Zu den genannten Nebenkosten rechnen Sie bitte die Kosten für Strom, welche Sie eigenständig mit dem Versorgungsunternehmen abrechnen.

Hinweis: inzwischen wurde die Öl-Heizung durch eine Gasheizung ersetzt!

Bitte beachten Sie, dass für die Anmietung dieser Immobilie auf Wunsch des Vermieters folgende Voraussetzungen gelten:

- Mindestvertragslaufzeit von 2 Jahren mit Verlängerungsoption
- Staffelmiete alle 2 Jahre um € 50,00
- Nachweis über positive Bonität (durch Vorlage aktueller BWA)
- bei Neugründungen ggf. erhöhte Kaution nach Absprache
- keine negativen Schufa-Einträge
- Stellplatzmiete pro Stellplatz € 25,00

SCHON GEWUSST...?

Wir veröffentlichen unsere Immobilienangebote zuerst auf unserer Website. Die Vermarktung in den bekannten Immobilien-Portalen findet – sofern erforderlich – bis zu einer Woche später statt.

Lage

Die Büro- und Lagerfläche befinden sich im Bremer Stadtteil Osterfeuerberg und bieten eine optimale Verkehrsanbindung an die B6 sowie an die A27. Durch die zentrale Lage und die gute Infrastruktur haben sich hier einige Firmen, unter anderem Biomaris und Lidl, angesiedelt. Die Auf- und Abfahrt zum Zubringer Überseestadt, der zur A27 und B75 führt, liegt nur ca. 60 Meter entfernt. Auch die Bremer Innenstadt ist sowohl mit dem Auto als auch mit den öffentlichen Verkehrsmitteln in nur wenigen Minuten zu erreichen – kurzum, ein super, zentraler Standort mitten in Bremen!

Die dargestellte Position der Immobilie ist nur eine ungefähre Angabe.

Kontaktdaten

Jasmin Grüneberg, Hechler & Twachtmann Immobilien GmbH

Direktanfrage

* Pflichtangaben
 SSL-verschlüsselt