Mitten in der City – Ladenlokal in der Fußgängerzone!

27749 Delmenhorst, Ladenlokal zur Miete

Energieausweis

  • Energieausweistyp
    Verbrauchs­ausweis
  • Ausstellungsdatum
    ab dem 1.5.2014
  • Gültig bis
    15.06.2026
  • Gebäudeart
    Nichtwohngebäude
  • Baujahr lt. Energieausweis
    1979
  • Primärenergieträger
    Gas
  • Endenergie­verbrauch
    159,90 kWh/(m²·a)
  • Endenergie­verbrauch Strom
    106,40 kWh/(m²·a)
  • Endenergie­verbrauch Wärme
    53,50 kWh/(m²·a)
0 25 50 75 100 125 150 175 200 225 250+ H G F E D C B A A+ H G F E D C B A A+ Endenergieverbrauch Strom 106,40 kWh/(m²·a) Endenergieverbrauch Wärme 53,50 kWh/(m²·a)

Objektdaten

  • Objekt ID
    LS062M
  • Objekttypen
    Einzelhandel, Ladenlokal
  • Adresse
    27749 Delmenhorst
    Niedersachsen
  • Etage
    EG
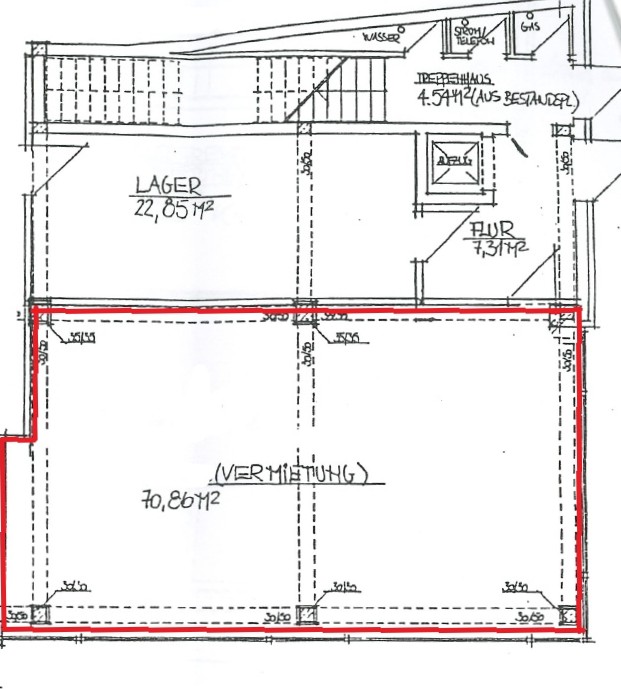
  • Nutzfläche ca.
    104 m²
  • Gesamtfläche ca.
    104 m²
  • Verkaufsfläche ca.
    70 m²
  • Zimmer
    0,0
  • Schlafzimmer
    0,0
  • Badezimmer
    0,0
  • Baujahr
    1979
  • Zustand
    gepflegt
  • Verfügbar ab
    01.05.2026
  • Mieter­provision (gewerblich)
    Im Erfolgsfall ist vom Mieter ein Erfolgshonorar in Höhe von 1,78 Monatskaltmieten inkl. MwSt. zu zahlen!
  • Kaution
    2.900,00 EUR
  • Kaltmiete
    1.250,00 EUR
  • Nettokaltmiete
    1.250,00 EUR
  • Summe Miete netto
    1.250,00 EUR
  • Betriebskosten brutto
    390,00 EUR
  • Warmmiete
    1.640,00 EUR (Heizkosten enthalten)

Ausstattung / Merkmale

  • Fliesenboden
  • Kein Keller
  • Lastenaufzug
  • Seniorengerecht

Objekt­beschreibung

Beschreibung

In direkter Innenstadtlage von Delmenhorst, mitten in der Fußgängerzone, befindet sich dieses großzügige Ladenlokal mit barrierefreiem Eingang.

Hinter der verglasten Eingangstür erwartet Sie eine großzügige Verkaufsfläche, die sich vielseitig nutzen lässt. Die komplett verglaste Vorderseite bietet umfangreiche Möglichkeiten für Schaufenster- oder Werbefläche. Die Verkaufsfläche ist aufgrund der aktuellen Nutzung mit Fliesen ausgestattet, welche zudem über einen Wasserablauf verfügen. Dies erleichtert die Reinigung des Bodens enorm. Im hinteren Bereich der Einheit wurde vom aktuellen Mieter eine Kältekammer zur Kühlung der Ware errichtet. Diese und auch die Lebensmitteltheke können bei Bedarf vom Vormieter übernommen werden, was hier einen besonderen Vorteil für Lebensmittelgeschäfte bietet.

Deckenspots sind über die gesamte Verkaufsfläche verteilt und sorgen für gleichmäßige Beleuchtung.

Im gemeinschaftlichen Flur, welcher noch einen Hintereingang zur Einheit bietet, befindet sich ein Lastenaufzug, welcher zurzeit stillgelegt ist, da er nicht genutzt wurde. Sofern dieser wieder benötigt wird, besteht nach Absprache die Möglichkeit der Wiederinbetriebnahme.

Über das Treppenhaus erreichen Sie im ersten Obergeschoss den Sozialraum für diese Einheit. Aufgrund der Größe und direkter Verbindung mit dem Lastenaufzug kann dieser ebenfalls ideal als Lagerraum genutzt werden.

An diesen Raum angrenzend befindet sich auch das Personal-WC.

Aktuell wurde in Absprache mit der benachbarten Mieteinheit ein Parkplatz zur Anlieferung mitgenutzt, ein fester Parkplatz gehört allerdings nicht zur Einheit.

Dieses Ladenlokal könnte der perfekte neue Standort für Ihr Geschäft sein? Dann fordern Sie gerne unser Exposé an und wenn Ihnen die Lage gefällt, freuen wir uns über Ihren Anruf zur Vereinbarung eines Termins zur Besichtigung!

Ausstattung

- Kältekammer und Lebensmitteltheke können gegen Abstand übernommen werden
- großes Glasschaufenster mit Werbefläche
- Einbauspots über die gesamte Verkaufsfläche
- Fliesen mit Wasserablauf in der Verkaufsfläche
- Sozialraum oder Lager im OG
- Personal-WC im OG
- stillgelegter Lastenaufzug ins OG kann ggf. wieder in Betrieb genommen werden
- Gaszentralheizung
- Warmwasser über Durchlauferhitzer

Sonstige Informationen

Es liegt ein Energieverbrauchsausweis vor.
Dieser ist gültig bis 15.6.2026.
Endenergieverbrauch für die Wärme beträgt 53.50 kwh/(m²*a).
Endenergieverbrauch für den Strom beträgt 106.40 kwh/(m²*a).
Wesentlicher Energieträger der Heizung ist Gas.

Aufgrund des Wettbewerbsausschlusses kann hier kein Bäcker oder Mobilfunkanbieter eröffnet werden.

Zu der genannten Nettomiete und der Nebenkostenvorauszahlung rechnen Sie bitte die gesetzliche Mehrwertsteuer hinzu sowie die Kosten für Strom, die Sie direkt mit dem Versorgungsunternehmen abrechnen.

Bitte beachten Sie, dass für die Anmietung dieser Immobilie auf Wunsch des Vermieters folgende Voraussetzungen gelten:
- Nachweis über positive Bonität (durch Vorlage aktueller BWA)
- bei Neugründungen ggf. erhöhte Kaution nach Absprache
- keine negativen Schufa-Einträge

Wir bitten um Ihr Verständnis für diese Vorgaben. Vielen Dank!

SCHON GEWUSST?
Wir veröffentlichen unsere Immobilienangebote auf unserer Website bereits bis zu einer Woche vor der Vermarktung in den bekannten Immobilienportalen. Dies findet – falls noch erforderlich – erst später statt.

Sie möchten künftig kein neues Angebot mehr verpassen? Ein Anruf oder eine E-Mail mit Ihrem Suchwunsch genügt. Als registrierter Kunde erhalten Sie alle Exposés zu passenden Immobilien bereits VOR offiziellem Vermarktungsstart!
0421-95700810, anfrage@hechler-twachtmann.de
Dieser Service ist natürlich kostenfrei und unverbindlich.

Der Makler behält sich ausdrücklich vor für beide Seiten vermittelnd (auch provisionspflichtig) tätig zu werden.

Lage

Delmenhorst liegt zentral zwischen Oldenburg und Bremen und bietet eine optimale Verkehrsanbindung sowohl zu den Autobahnen A1 und A28 als auch an den Schienenverkehr.

Die belebte Innenstadt mit ihrem vielfältigen Einkaufs- und Freizeitangebot sorgt für eine hohe Kundenfrequenz – perfekt für Food-Konzepte und Gewerbebetriebe.

Das Objekt befindet sich direkt in der Fußgängerzone. Ausreichend Parkplätze finden Sie fußläufig auf den öffentlichen Parkplätzen an der Parkstraße.

Die dargestellte Position der Immobilie ist nur eine ungefähre Angabe.

Kontaktdaten

 Vermietungsteam, Hechler & Twachtmann Immobilien GmbH

Direktanfrage

* Pflichtangaben
 SSL-verschlüsselt