Großzügige Flächen und Parkmöglichkeiten in erstklassiger Lage in Oberneuland!

28355 Bremen / Oberneuland, Verkaufsfläche zur Miete

Energieausweis

  • Energieausweistyp
    Bedarfs­ausweis
  • Ausstellungsdatum
    ab dem 1.5.2014
  • Gültig bis
    07.02.2032
  • Gebäudeart
    Nichtwohngebäude
  • Baujahr lt. Energieausweis
    1999
  • Primärenergieträger
    Gas
  • Endenergie­bedarf Strom
    23,00 kWh/(m²·a)
  • Endenergie­bedarf Wärme
    100,00 kWh/(m²·a)
0 25 50 75 100 125 150 175 200 225 250+ H G F E D C B A A+ H G F E D C B A A+ Endenergiebedarf Strom 23,00 kWh/(m²·a) Endenergiebedarf Wärme 100,00 kWh/(m²·a)

Objektdaten

  • Objekt ID
    KB079M
  • Objekttypen
    Einzelhandel, Verkaufsfläche
  • Adresse
    (Bremen-Oberneuland/Borgfeld/Horn-Lehe)
    28355 Bremen / Oberneuland
    Bremen
  • Gesamtfläche ca.
    484 m²
  • Zimmer
    0,0
  • Schlafzimmer
    0,0
  • Badezimmer
    0,0
  • Baujahr
    1999
  • Zustand
    gepflegt
  • Verfügbar ab
    ab sofort
  • Mieter­provision (gewerblich)
    Im Erfolgsfall ist vom Mieter ein Erfolgshonorar in Höhe von 3,57 Monatskaltmieten inkl. MwSt. zu zahlen!
  • Kaution
    7.480,00 EUR
  • Kaltmiete
    3.740,00 EUR
  • Nettokaltmiete
    3.740,00 EUR
  • Summe Miete netto
    3.740,00 EUR
  • Betriebskosten brutto
    700,00 EUR
  • Warmmiete
    4.440,00 EUR (Heizkosten enthalten)

Ausstattung / Merkmale

  • Keller
  • Lastenaufzug
  • Parkettboden
  • Teppichboden

Objekt­beschreibung

Beschreibung

Diese großzügige Verkaufsfläche befindet sich in einem ansprechenden Wohn- und Geschäftshaus in einer guten Sichtlage in Bremen Oberneuland.

Folgende Flächen stehen zur Verfügung:
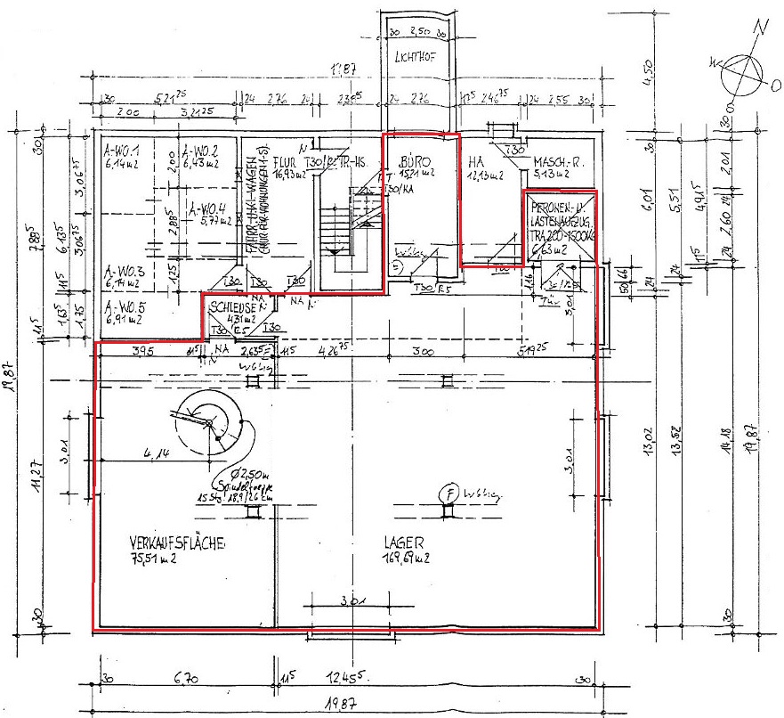
- Verkaufsfläche im Erdgeschoss, ca. 182 m²
- Verkaufs-/Lagerfläche im Kellergeschoss, ca. 276 m²
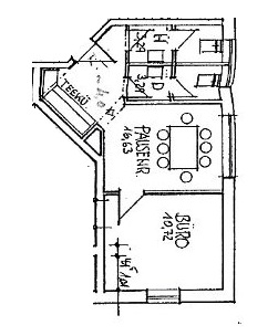
- Sozialfläche im 1. Obergeschoss, ca. 33 m²

Der Eingangsbereich führt Sie direkt in die weitläufige Verkaufsfläche, die durch ihre offene Gestaltung vielfältige Präsentationsmöglichkeiten bietet. Große Fensterfronten sorgen für eine helle und einladende Atmosphäre. Die vorhandenen Regale können bei Bedarf vom aktuellen Mieter gerne übernommen werden.

Das Untergeschoss ist sowohl über eine Wendeltreppe aus der Verkaufsfläche als auch über das Treppenhaus zu erreichen. Hier finden Sie zusätzliche Verkaufs- und/oder Lagerflächen, die ausreichend Stauraum für Ihre Waren bieten. Ihre Waren können bequem über den Lastenaufzug in das Untergeschoss gebracht werden. Ein separater Bürobereich ermöglicht eine ruhige Arbeitsumgebung abseits des Kundenverkehrs. Auch dieser Raum ist zusätzlich über das Treppenhaus zu erreichen.

Für das Wohl Ihrer Mitarbeiter steht eine gemütliche Sozialfläche im ersten Obergeschoss mit Küche und zwei Mitarbeiter-WCs zur Verfügung.

Der große Parkplatz direkt vor dem Gebäude bietet ausreichend Stellplätze für Kunden und Mitarbeiter.

Die Immobilie besticht durch ihre funktionale Aufteilung und die gute Anbindung an die umliegende Infrastruktur. Nutzen Sie diese Gelegenheit, um Ihr Geschäft in einer attraktiven Lage zu etablieren.

Ausstattung

-Verkaufsfläche im Erdgeschoss, ca. 182 m²
- großer Verkaufsraum
- Parkettboden
- Rasterdecken mit integrierter Beleuchtung
- Automatiktür

Verkaufs-/Lagerfläche im Kellergeschoss, ca. 276 m²
- großer Verkaufs-/Lagerraum
- 1 Büroraum
- Lastenaufzug
- Teppichboden und Laminat

Sozialfläche im 1. Obergeschoss, ca. 33 m²
- 2 Räume
- 2 WCs
- Küchenzeile
- Teppich- und Fliesenböden

- diverse Pkw-Stellplätze direkt vor der Tür

Sonstige Informationen

Es liegt ein Energiebedarfsausweis vor.
Dieser ist gültig bis 7.2.2032.
Endenergiebedarf für die Wärme beträgt 100.00 kwh/(m²*a).
Endenergiebedarf für den Strom beträgt 23.00 kwh/(m²*a).
Wesentlicher Energieträger der Heizung ist Gas.

Bitte beachten Sie, dass für die Anmietung dieser Immobilie auf Wunsch des Vermieters folgende Voraussetzungen gelten:

- Mindestvertragslaufzeit bis zum 31.12.2027 mit Verlängerungsoption
- Nachweis über positive Bonität (durch Vorlage aktueller BWA)
- bei Neugründungen ggf. erhöhte Kaution nach Absprache
- keine negativen Schufa-Einträge

SCHON GEWUSST...?

Wir veröffentlichen unsere Immobilienangebote zuerst auf unserer Website. Die Vermarktung in den bekannten Immobilien-Portalen findet – sofern erforderlich – bis zu einer Woche später statt.
Alle Immobilien finden Sie auf www.hechler-twachtmann.de. Sie möchten zukünftig kein Angebot verpassen? Dann legen Sie einfach ein Suchprofil an – ebenfalls online auf unserer Website.

Dieser Service ist natürlich kostenfrei und unverbindlich. Es gelten die AGB's.

Lage

Die Immobilie liegt in Bremen Oberneuland, einem der gefragtesten Stadtteile der Stadt. Bekannt für seine gehobene Wohnqualität, verbindet Oberneuland urbanes Leben mit Natur. Die Lage bietet hohe Sichtbarkeit und ist ideal für Unternehmen mit viel Kundenverkehr.

Die Umgebung besticht durch stilvolle Wohnhäuser und etablierte Geschäfte. Einkaufsmöglichkeiten, Cafés und Restaurants sind in der Nähe und sorgen für eine lebendige Atmosphäre.

Die Verkehrsanbindung ist hervorragend: Die A27 ist schnell erreichbar und der öffentliche Nahverkehr ist gut ausgebaut, mit mehreren Buslinien und der Nähe zum Bahnhof Oberneuland.

Diese prestigeträchtige Adresse bietet eine ideale Kombination aus lebendiger Umgebung und erstklassiger Infrastruktur – perfekt für Ihr Geschäft.

Google Maps

Mit dem Laden der Karte akzeptieren Sie die Datenschutzerklärung von Google.
Mehr erfahren

Karte laden

Die dargestellte Position der Immobilie ist nur eine ungefähre Angabe.

Kontaktdaten

Katrin Bruns, Hechler & Twachtmann Immobilien GmbH

Direktanfrage

 SSL-verschlüsselt