Großzügige Gewerbefläche mit Halle, Büro und Stellplätzen

28816 Stuhr, Halle zur Miete

Energieausweis

  • Energieausweistyp
    Bedarfs­ausweis
  • Ausstellungsdatum
    ab dem 1.5.2014
  • Gültig bis
    11.03.2036
  • Gebäudeart
    Nichtwohngebäude
  • Baujahr lt. Energieausweis
    1973
  • Primärenergieträger
    Öl
  • Endenergie­bedarf
    362,00 kWh/(m²·a)
  • Endenergie­bedarf Strom
    2,30 kWh/(m²·a)
  • Endenergie­bedarf Wärme
    325,40 kWh/(m²·a)
0 25 50 75 100 125 150 175 200 225 250+ H G F E D C B A A+ H G F E D C B A A+ Endenergiebedarf Strom 2,30 kWh/(m²·a) Endenergiebedarf Wärme 325,40 kWh/(m²·a)

Objektdaten

  • Objekt ID
    HC075M
  • Objekttypen
    Halle, Halle/Lager/Produktion
  • Adresse
    28816 Stuhr
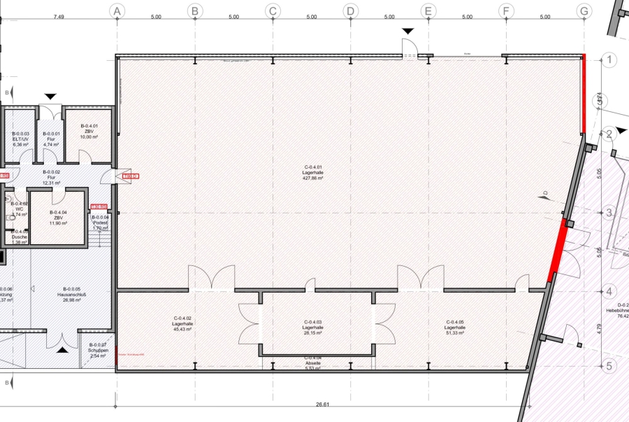
  • Bürofläche ca.
    27 m²
  • Gesamtfläche ca.
    580 m²
  • Lagerfläche ca.
    553 m²
  • Hallenhöhe
    5,5 m
  • Zimmer
    0,0
  • Schlafzimmer
    0,0
  • Badezimmer
    0,0
  • Baujahr
    1973
  • Zustand
    gepflegt
  • Verfügbar ab
    Kurzfristig
  • Mieter­provision (gewerblich)
    Im Erfolgsfall ist vom Mieter ein Erfolgshonorar in Höhe von 2,38 Monatskaltmieten inkl. MwSt. zu zahlen!
  • Kaution
    9.360,00 EUR
  • Kaltmiete
    3.120,00 EUR
  • Nettokaltmiete
    3.120,00 EUR
  • Summe Miete netto
    3.120,00 EUR
  • Betriebskosten brutto
    330,00 EUR
  • Warmmiete
    3.450,00 EUR (Heizkosten enthalten)

Ausstattung / Merkmale

  • Kein Keller

Objekt­beschreibung

Beschreibung

Zur Vermietung steht eine vielseitig nutzbare Gewerbeimmobilie in guter Erreichbarkeit mit großzügigen Hallenflächen, separatem Büro sowie Sanitär- und Nebenflächen. Das Objekt eignet sich insbesondere für Lager, handwerkliche Nutzung, leichte Produktion oder gewerbliche Dienstleistungen.

Die Gesamtfläche beträgt ca. 580 m². Herzstück der Immobilie ist die großzügige Hallenfläche mit mehreren nutzbaren Bereichen und einer Hallenhöhe von ca. 4,80 m bis ca. 5,50 m. Dadurch bietet die Fläche gute Voraussetzungen für Lagerung, Werkstattnutzung oder interne Betriebsabläufe mit entsprechendem Platzbedarf.

Ergänzt wird das Angebot durch ein separates Büro, eine Küche/Sozialfläche sowie Damen- und Herren-WC. Die vorhandenen Büro- und Nebenflächen schaffen angenehme Voraussetzungen für Verwaltung, Mitarbeiteraufenthalt und Kundenempfang direkt am Standort.

Die Andienung erfolgt über ein großes Hallentor. Stellplätze sowie Außenflächen sind vorhanden. Zudem bestehen Werbemöglichkeiten an der Außenfassade, sodass der Standort auch für Unternehmen mit Sichtbarkeitsbedarf interessant ist.

Die Immobilie befindet sich insgesamt in einem funktionalen Zustand und bietet eine gute Grundlage für unterschiedlichste gewerbliche Konzepte.

Zögern Sie nicht, uns für weitere Informationen oder eine Besichtigung zu kontaktieren. Wir freuen uns darauf!

Ausstattung

- ca. 580 m² Gesamtfläche inkl. Büro und Sozialräume
- separates Büro
- Küche/Sozialbereich
- 1 Damen-WC und 1 Herren-WC
- Hallenhöhe ca. 4,80 m bis 5,50 m
- großes Hallentor zur Anlieferung
- Stellplätze vorhanden auf dem Gelände (nicht fest zugeordnet)
- Werbung außen möglich
- DSL-Anschluss
- Luftheizung über Strom
- Warmwasser über Boiler
- geeignet für Lager, Handwerk, Produktion und gewerbliche Nutzung

Sonstige Informationen

Es liegt ein Energiebedarfsausweis vor.
Dieser ist gültig bis 11.3.2036.
Endenergiebedarf für die Wärme beträgt 325.40 kwh/(m²*a).
Endenergiebedarf für den Strom beträgt 2.30 kwh/(m²*a).
Wesentlicher Energieträger der Heizung ist Öl.

Bei den Nebenkosten handelt es sich um eine Nebenkostenpauschale. Die Nebenkosten können nicht separat abgerechnet werden!

Konditionen:
- 1. Mietjahr: 3.120,00 € Kaltmiete
- 2. Mietjahr: 3.220,00 € Kaltmiete
- 3. Mietjahr: 3.320,00 € Kaltmiete
- ab dem 4. Mietjahr: Indexmiete

Bitte beachten Sie, dass für die Anmietung dieser Immobilie auf Wunsch des Vermieters folgende Voraussetzungen gelten:

- Mindestvertragslaufzeit von 2 Jahren mit Verlängerungsoption
- Nachweis über positive Bonität (durch Vorlage aktueller BWA)
- bei Neugründungen ggf. erhöhte Kaution nach Absprache
- keine negativen Schufa-Einträge

Wir bitten um Ihr Verständnis für diese Vorgaben, vielen Dank!

SCHON GEWUSST?
Wir veröffentlichen unsere Immobilienangebote auf unserer Website bereits bis zu einer Woche vor der Vermarktung in den bekannten Immobilienportalen. Dies findet – falls noch erforderlich – erst später statt.

Sie möchten künftig kein neues Angebot mehr verpassen? Ein Anruf oder eine E-Mail mit Ihrem Suchwunsch genügt. Als registrierter Kunde erhalten Sie alle Exposés zu passenden Immobilien bereits VOR offiziellem Vermarktungsstart!

0421 957 008-10, anfrage@hechler-twachtmann.de
Dieser Service ist kostenfrei und unverbindlich. Es gelten die AGB's.

Der Makler behält sich ausdrücklich vor, für beide Seiten vermittelnd (auch provisionspflichtig) tätig zu werden.

Lage

Ideal gelegen für Firmen, unweit von Bremen, erweist sich die Gemeinde Stuhr als angenehmer Standort. Der Ortsteil Moordeich grenzt direkt an die Landesgrenze zu Bremen, Stadtteil Huchting.

Das Wohn- und Geschäftshaus befindet sich in hinterer Bebauung der Moordeicher Landstraße und künftig in direkter Nähe zur Straßenbahnhaltestelle, jedoch bereits jetzt gut angebunden durch die BSAG.

Die dargestellte Position der Immobilie ist nur eine ungefähre Angabe.

Kontaktdaten

Direktanfrage

* Pflichtangaben
 SSL-verschlüsselt