Helles, energieeffizientes Rotklinkerhaus in ländlicher Idylle mit parkähnlicher Gartenanlage

27257 Affinghausen, Einfamilienhaus zum Kauf

Energieausweis

  • Energieausweistyp
    Bedarfs­ausweis
  • Gebäudeart
    Wohngebäude
  • Baujahr lt. Energieausweis
    2013
  • Primärenergieträger
    Erdwärme
  • Endenergie­bedarf
    53,70 kWh/(m²·a)
  • Energie­effizienz­klasse
    B
0 25 50 75 100 125 150 175 200 225 250+ H G F E D C B A A+ H G F E D C B A A+ Endenergiebedarf 53,70 kWh/(m²·a)

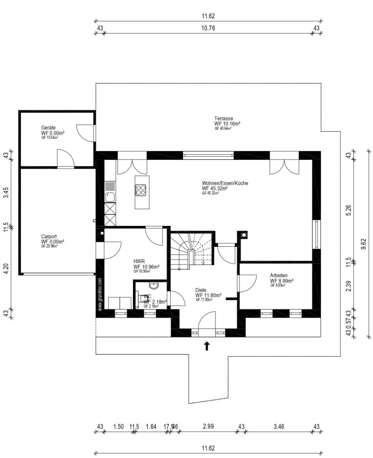
Objektdaten

  • Objekt ID
    1082
  • Objekttypen
    Einfamilienhaus, Haus
  • Adresse
    27257 Affinghausen
  • Wohnfläche ca.
    152 m²
  • Grund­stück ca.
    1.269 m²
  • Zimmer
    5
  • Schlafzimmer
    0,0
  • Badezimmer
    0,0
  • Baujahr
    2013
  • Zustand
    gepflegt
  • Käufer­provision
    3,57 % des Kaufpreises inkl. Mehrwertsteuer
  • Kaufpreis
    418.000 EUR

Objekt­beschreibung

Beschreibung

Dieses besondere Zuhause lädt Familien dazu ein, anzukommen und sich rundum geborgen zu fühlen. Helle, großzügige Räume schenken viel Platz für gemeinsames Leben, Lachen und wertvolle Momente im Alltag. Mit viel Liebe zum Detail und einer hochwertigen, zeitgemäßen Ausstattung entsteht in den Räumen eine warme und vertraute Atmosphäre. Der große Garten wird schnell zum Lieblingsort für Groß und Klein – ob zum Spielen, Entspannen oder Zusammensein. Ein Ort, der nicht nur Raum bietet, sondern ein echtes Gefühl von Zuhause schafft. Ideal für Familien, die sich modernes Wohnen wünschen mit viel Freiraum zum Leben.

Haben wir Ihr Interesse geweckt? Dann vereinbaren Sie einen Besichtigungstermin mit uns – denn nur bei einer Innen- und Außenbesichtigung können Sie erkennen, ob die Immobilie Ihren Anforderungen und Wünschen entspricht. Rufen Sie uns an!

Ausstattung

Das 2013 erbaute Wohnhaus mit Erdgeschoss und Dachgeschoss bietet Wohnraum auf ca. 152 m² mit 5 geräumigen Zimmern. Die stilvolle Einrichtung wird gehobenen Wohnansprüchen gerecht. Das klassische und sehr einladende Design prägt durchgehend den Stil den Hauses. So sind die lichtdurchfluteten Räume, hochwertige Bodenbeläge und der gemütliche Ofen nur einige nennenswerte Details. Das Wohnhaus wurde mit technisch erstklassiger Ausstattung gebaut und befindet sich energetisch auf modernstem Stand:

- gute Wärmedämmung der Außenwände und der Geschossdecken
- Beheizung durch eine Erdwärmepumpe
- Fußbodenheizung im gesamten Haus
- dreifachverglaste, zum Garten bodentiefe Fenster
- Fenster im Erdgeschoss sind abschließbar
- elektrische Rollläden im Erdgeschoss
- italienische Steinfliesen im Erdgeschoss
- hochwertige Einbauküche mit neuwertiger Spülmaschine
- Ofen mit geräumigen Wohnzimmer mit vorbereiteter Belüftung
- repräsentative Buchentreppe zum Dachgeschoss
- Vinyl-Boden im Obergeschoss
- im Dachgeschoss Bad mit abgetrenntem WC- und Duschbereich (ebenerdig), Handtuchheizung, zwei Waschbecken mit Waschtisch und einer tiefergelegten Badewanne
- gut gedämmter Dachboden
- Dacheindeckung mit Betonpfannen
- an der Wetterseite sind Ausblühungen an den Außenwänden sichtbar

Haustechnik: Erdwärmepumpe mit Fußbodenheizung, Elektrizität, Kanalisation, öffentliches Wasser, Photovoltaikanlage gemietet (Mietvertrag bis 2037), 11kW-Wallbox, Glasfaser.

Übergabe: Die Immobilie wird zurzeit noch durch die Eigentümer bewohnt, die sich verkleinern. Zum 1. August 2026 wird das Haus voraussichtlich frei.

Sonstige Informationen

Die vom Käufer zu zahlende Grunderwerbsteuer beträgt 5 %, zusätzlich trägt der Käufer die Notar- und Gerichtskosten. Wir haben einen provisionspflichtigen Maklervertrag mit dem Verkäufer in gleicher Höhe abgeschlossen.

Dieses Angebot ist freibleibend. Wir bemühen uns, alle Angaben so vollständig und richtig wie möglich zu machen. Da wir uns hierbei auch auf die Informationen, die wir von Dritten (Verkäufern, Behörden, usw.) erhielten, stützen müssen, übernehmen wir keine Gewähr für die Richtigkeit der Angaben.

Lage

Grundstück: Das großzügige Grundstück mit insgesamt 1.269 m² liegt in einer verkehrsruhigen Wohnsiedlung, fern vom hektischen Treiben größerer Städte. Mit dem liebevoll und detailreich angelegten Garten entsteht durch die Stauden- und Hochbeete, vielfältige Bepflanzungen, Hainbuchenhecken und viele einzigartige Blickfänge ein echter Rückzugsort mit Hygge-Charakter. Der Teich mit Goldfischen und Rotfedern wird mit Grundwasser gespeist, eine neue Pumpe sollte noch installiert werden. Der Rasenmäher-Roboter sorgt für gepflegte Rasenabschnitte und verschwindet nach getaner Arbeit in ein eigens gemauerten Häuschen. Ein Hühnergehege, ein großes Gewächshaus sowie ein Geräteschuppen dienen als Unterstände.

Nebengebäude: Als Nebengebäude ist ein Carport mit zwei Stellplätzen und Abstellraum vorhanden.

Lage: Der ruhiger, idyllische Ort Affinghausen ist Mitgliedsgemeinde in der Samtgemeinde Schwaförden und hat ca. 900 Einwohner. Die Lage im ungefähren Mittelpunkt des Vierecks Syke – Bassum – Sulingen – Bruchhausen-Vilsen lässt den Ort von den infrastrukturellen Einrichtungen dieser Kleinstädte mit profitieren. Für die tägliche Versorgung ist ein Bäckereiverkauf direkt im Ort, alle weiteren Einkaufsmöglichkeiten befinden sich jeweils ca. 12 - 14 km entfernt in Sulingen oder Bruchhausen-Vilsen. Die Grundschule Scholen mit der Außenstelle Sudwalde liegt in ca. 3 km Entfernung. Ein Zahnarzt ist im Ort ansässig, weitere Haus- und Fachärzte befinden sich ebenfalls in Sulingen oder Bruchhausen-Vilsen. Das Dorfgemeinschaftshaus mit Sportplatz und Sporthalle ist Treffpunkt für ein aktives und sportliches Dorfleben. Der Gasthof Bensemann ist weit über die Grenzen des Ortes bekannt. Mehrere Vereine bieten vielfältige Freizeitmöglichkeiten, und gut ausgebaute Fahrrad-, Reit- und Wanderwege prägen die Umgebung Affinghausens. Weitere Informationen finden Sie hier: Gemeinde Affinghausen - Startseite (gemeinde-affinghausen.de)

Die dargestellte Position der Immobilie ist nur eine ungefähre Angabe.

Kontaktdaten

Meike Zum Vohrde, Benjes Immobilien GmbH

Direktanfrage

* Pflichtangaben
 SSL-verschlüsselt