Rückzugsort im Grünen: Familienfreundliches Wohnhaus mit Scheune und viel Platz in Einzellage

27211 Bassum, Einfamilienhaus zum Kauf

Energieausweis

  • Energieausweistyp
    Verbrauchs­ausweis
  • Ausstellungsdatum
    ab dem 1.5.2014
  • Gültig bis
    05.06.2034
  • Gebäudeart
    Wohngebäude
  • Baujahr lt. Energieausweis
    1928
  • Primärenergieträger
    Gas
  • Endenergie­verbrauch
    157,00 kWh/(m²·a)
  • Energie­effizienz­klasse
    E
0 25 50 75 100 125 150 175 200 225 250+ H G F E D C B A A+ H G F E D C B A A+ Endenergieverbrauch 157,00 kWh/(m²·a)

Objektdaten

  • Objekt ID
    1006
  • Objekttypen
    Einfamilienhaus, Haus
  • Adresse
    27211 Bassum
  • Wohnfläche ca.
    203 m²
  • Grund­stück ca.
    2.050 m²
  • Zimmer
    6
  • Schlafzimmer
    0,0
  • Badezimmer
    3
  • Balkone
    1
  • Terrassen
    1
  • Wesentlicher Energieträger
    Gas
  • Baujahr
    1928
  • Zustand
    gepflegt
  • Käufer­provision
    3,57 % des Kaufpreises inkl. Mehrwertsteuer
  • Kaufpreis
    325.000 EUR

Ausstattung / Merkmale

  • Balkon
  • Einliegerwohnung
  • Terrasse

Objekt­beschreibung

Beschreibung

Das Wohnhaus mit Einliegerwohnung ist sehr geräumig und ideal für die große Familie, die viel Platz im Haus, auf dem Grundstück und in den Nebengebäuden benötigt. Das Dachgeschoss bietet zusätzliche Wohnräume. Aufgrund der geringen Deckenhöhe eignet sich das Dachgeschoss besonders gut z. B. für Gästezimmer. Das Haus wurde immer wieder modernisiert und ausgebaut. Dennoch ist die Ausstattung überwiegend noch aus der Bauzeit - es sind (energetische) Investitionen notwendig. Der Garten bietet reichlich Platz für Hobbygärtner, spielende Kinder und entspannte Grillabende im Freien.

Haben wir Ihr Interesse geweckt? Dann vereinbaren Sie einen Besichtigungstermin mit uns – denn nur bei einer Innen- und Außenbesichtigung können Sie erkennen, ob die Immobilie Ihren Anforderungen und Wünschen entspricht. Rufen Sie uns an!

Ausstattung

Das ursprüngliche Haus wurde 1928 gebaut und ab Mitte der 1970er Jahre umfangreich modernisiert und umgebaut. Das Haus verfügt teilweise über großzügige Räume, die sich individuell gestalten lassen. Die Küche und der HWR im Erdgeschoss sind Durchgangszimmer. Die Einliegerwohnung hat einen separaten Eingang über den Hof. Vom Balkon hat man einen herrlichen Blick über die weitläufige Natur und die Felder.

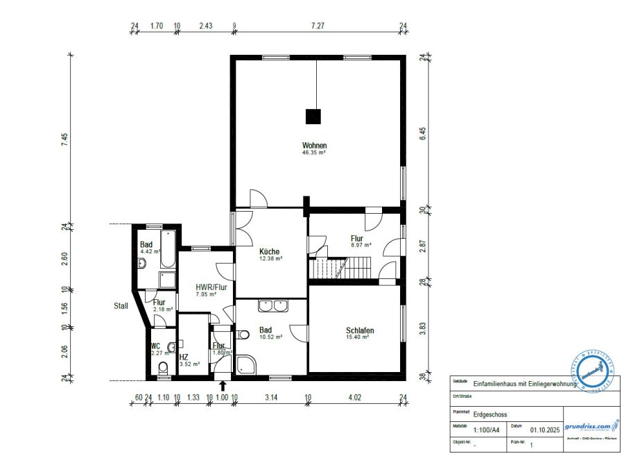
Erdgeschoss:
- Wohn-/Esszimmer mit Stäbchenparkett ausgelegt und großen Panoramafenstern in Ost/Süd-Richtung
- Überwiegend elektrische Rollläden - teilweise mit Sonnensensoren
- Neuwertige Einbauküche
- Badezimmer mit ebenerdiger Dusche, Bidet, Waschbecken, WC, Handtuchheizkörper
- Weiteres Badezimmer mit Badewanne, Dusche, Waschbecken (WC separat / angrenzend)
- Gäste-WC
- Partyraum mit Sichtbalken unter der Decke für die Einweihungsfeier.

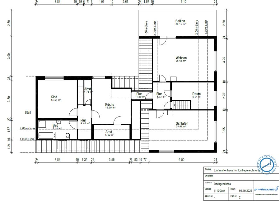
Dachgeschoss:
- 4 Räume mit überwiegend elektrischen Rolläden
- Einbauküche
- Badezimmer mit Badewanne, Dusche, Waschbecken, WC (Waschmaschinenanschluss).

Im Keller sind Ausblühungen an den Wänden erkennbar. Bei älteren Häusern empfehlen wir immer eine Überprüfung des Dachstuhls durch eine Fachfirma.

Da das Haus immer wieder an die jeweilige Wohnsituation der Bewohner angepasst wurde, ist die Grundrisslösung in Teilen unkonventionell. So sind z. B. die Einliegerwohnung im Dachgeschoss und die Räumlichkeiten im vorderen Hausteil durch einen sehr schmalen Flur verbunden.

Haustechnik: Zwei Gasthermen (Baujahr 1990 bzw. 1997), Elektrizität, öffentliches Wasser, Telefon. Im Badezimmer (Dachgeschoss) befindet sich ein Durchlauferhitzer. Eine Glasfaserleitung liegt an der Straße - das Hausgrundstück ist daran derzeit nicht angeschlossen.

Übergabe: Das Hausgrundstück kann kurzfristig nach einen notariellen Kaufvertrag frei und geräumt übergeben werden.

Sonstige Informationen

Die vom Käufer zu zahlende Grunderwerbsteuer beträgt 5 %, zusätzlich trägt der Käufer die Notar- und Gerichtskosten und die Vermessungskosten. Wir haben einen provisionspflichtigen Maklervertrag mit dem Verkäufer in gleicher Höhe abgeschlossen.

Das Wohnhaus liegt im Bereich der "Flurbereinigung Bramstedt." Lt. Verfahrenssteckbrief wurde die Flurbereinigung 2019 angeordnet und die Schlussfeststellung soll 2033 erfolgen.

Dieses Angebot ist freibleibend. Wir bemühen uns, alle Angaben so vollständig und richtig wie möglich zu machen. Da wir uns hierbei auch auf die Informationen, die wir von Dritten (Verkäufern, Behörden, usw.) erhielten, stützen müssen, übernehmen wir keine Gewähr für die Richtigkeit der Angaben!

Lage

Grundstück: Das Grundstück ist ca. 2.000 m² groß und muss noch vermessen werden, die Vermessungskosten tragen die Käufer. Derzeit ist das Grundstück überwiegend als Rasenfläche angelegt, die sich gut in eine familienfreundliche Nutzung mit Spielwiese, Schaukel, Sandkasten, Trampolin und Baumhaus umgestalten lässt. Oder wünschen Sie sich einen Obst- und Gemüsegarten mit Hochbeeten und Gewächshaus? Auch dafür ist noch Platz! Der Hofraum zwischen den Gebäuden ist gepflastert und sehr tragfähig. Zur Straße hin wird das Grundstück durch einen geschmiedeten Zaum auf roten Klinkersteinen begrenzt. Der ehemalige "Wirtschaftsgarten" wird durch eine rote Klinkermauer vom "Blumengarten" getrennt. An den Garten grenzt eine knapp 10.000 m² große Ackerfläche, die Sie auf Wunsch zusätzlich erwerben können!

Nebengebäude:
- Nahezu freitragende Holzscheune (Stirnseiten gemauert) mit zwei Garagen, Abstellräumen und Durchfahrtmöglichkeit
- Ehemaliges Stallgebäude direkt am Wohnhaus mit Abstellräumen.

Lage in Bramstedt: Das Hausgrundstück liegt am Ortsrand von Bramstedt, einem kleinen aufstrebenden Ort mit Bahnhofsanschluss und Einkaufsmöglichkeiten für den täglichen Bedarf. Der Ort gehört zur Stadt Bassum, die über eine ausgezeichnete Infrastruktur und ein eigenes Krankenhaus verfügt. Die Kinder aus Bramstedt und Umgebung können ortsnah zunächst den Städtischen Kindergarten und danach die Grundschule in Bramstedt besuchen. Die ehemalige Filiale der Kreissparkasse Syke wird in Zukunft für die Kinderbetreuung genutzt. Die geografische Lage ist durch die Entfernung zu Bremen und die schnelle Erreichbarkeit der Südbremer Autobahnen hervorragend. Das vielseitige und rege Vereinsleben zeigt einige Möglichkeiten der Freizeitgestaltung auf, ebenso wie die leicht hügelige und waldreiche Landschaft, die in die „Wildeshauser Geest“ übergeht. Ideal für Wanderer und Radfahrer. Weitere Informationen finden Sie unter: www.bassum.de.

Google Maps

Mit dem Laden der Karte akzeptieren Sie die Datenschutzerklärung von Google.
Mehr erfahren

Karte laden

Die dargestellte Position der Immobilie ist nur eine ungefähre Angabe.

Kontaktdaten

Nicole Segelhorst, Benjes Immobilien GmbH

Direktanfrage

 SSL-verschlüsselt