Arsten! – Gepflegtes Einfamilienhaus mit Garten und Garage!

28279 Bremen, Einfamilienhaus zum Kauf

Energieausweis

  • Energieausweistyp
    Bedarfs­ausweis
  • Ausstellungsdatum
    ab dem 1.5.2014
  • Gültig bis
    23.06.2035
  • Gebäudeart
    Wohngebäude
  • Baujahr lt. Energieausweis
    1977
  • Primärenergieträger
    Öl
  • Endenergie­bedarf
    191,11 kWh/(m²·a)
  • Energie­effizienz­klasse
    F
0 25 50 75 100 125 150 175 200 225 250+ H G F E D C B A A+ H G F E D C B A A+ Endenergiebedarf 191,11 kWh/(m²·a)

Objektdaten

  • Objekt ID
    AD032K
  • Objekttypen
    Einfamilienhaus, Haus
  • Adresse
    (Bremen-Obervieland)
    28279 Bremen
    Bremen
  • Etagen im Haus
    1
  • Wohnfläche ca.
    120 m²
  • Grund­stück ca.
    461 m²
  • Nutzfläche ca.
    52 m²
  • Gesamtfläche ca.
    172 m²
  • Zimmer
    4
  • Schlafzimmer
    3
  • Badezimmer
    1
  • Terrassen
    1
  • Heizungsart
    Zentralheizung
  • Wesentlicher Energieträger
    Öl
  • Umgebung
    Grundschule: 0,2 km
    Gymnasium: 1,4 km
    Flughafen: 4,7 km
    Fernbahnhof: 1,8 km
    Autobahn: 0,3 km
    Zentrum: 5,9 km
    Bus: 0,1 km
    Einkaufen: 1,6 km
  • Baujahr
    1977
  • Zustand
    gepflegt
  • Verfügbar ab
    nach Absprache
  • Garage:
    1 Stellplatz
  • Käufer­provision
    Im Erfolgsfall sind vom Käufer 3,57 % inkl. MwSt. vom Kaufpreis zu zahlen. Mit dem Verkäufer wurde ein Maklerauftrag in gleicher Höhe abgeschlossen.
  • Kaufpreis
    389.000 EUR

Ausstattung / Merkmale

  • Einbauküche
  • Garage
  • Gartennutzung
  • Gäste-WC
  • Keller
  • Terrasse

Objekt­beschreibung

Beschreibung

Entdecken Sie Ihr neues Zuhause: Ein charmantes Einfamilienhaus aus dem Jahr 1977 mit ca. 115 m² Wohnfläche und vier Zimmern auf zwei Etagen wird verkauft.

Das Herzstück des Hauses ist ein ca. 30 m² großes und helles Wohnzimmer mit einem großen Hebe-Schiebe-Element. Es lässt viel Tageslicht herein, schafft ein freundliches Ambiente und ermöglicht den Blick in Richtung Terrasse und Garten.
Innen sorgt der Kamin für Gemütlichkeit, während Sie draußen auf gepflegtes Grün blicken – Erholung von einem arbeitsreichen Tag ist hier garantiert!

Durch einen Durchbruch der Wand zur angrenzenden Küche entsteht zusätzliches Potenzial für die Gestaltung eines offenen Wohnbereichs, der das Familienleben und gemeinsame Aktivitäten fördert.

Die Diele beeindruckt mit ihrer Großzügigkeit und der offenen Treppe in Holz-Metall-Konstruktion, die in die obere Etage führt. Fliesenböden sorgen für eine pflegeleichte und stilvolle Umgebung.

Ein ca. 13 m² großes Arbeitszimmer und ein Gäste-WC runden diese Etage perfekt ab.

Im Dachgeschoss erwarten Sie ein ca. 20 m² großes Schlafzimmer und ein ca. 13 m² großes Kinderzimmer. Ein Badezimmer, das mit nostalgischen Fliesen ausgestattet ist und über neue Sanitäreinrichtungen verfügt, zeigt eine gelungene Kombination zwischen neu und alt.

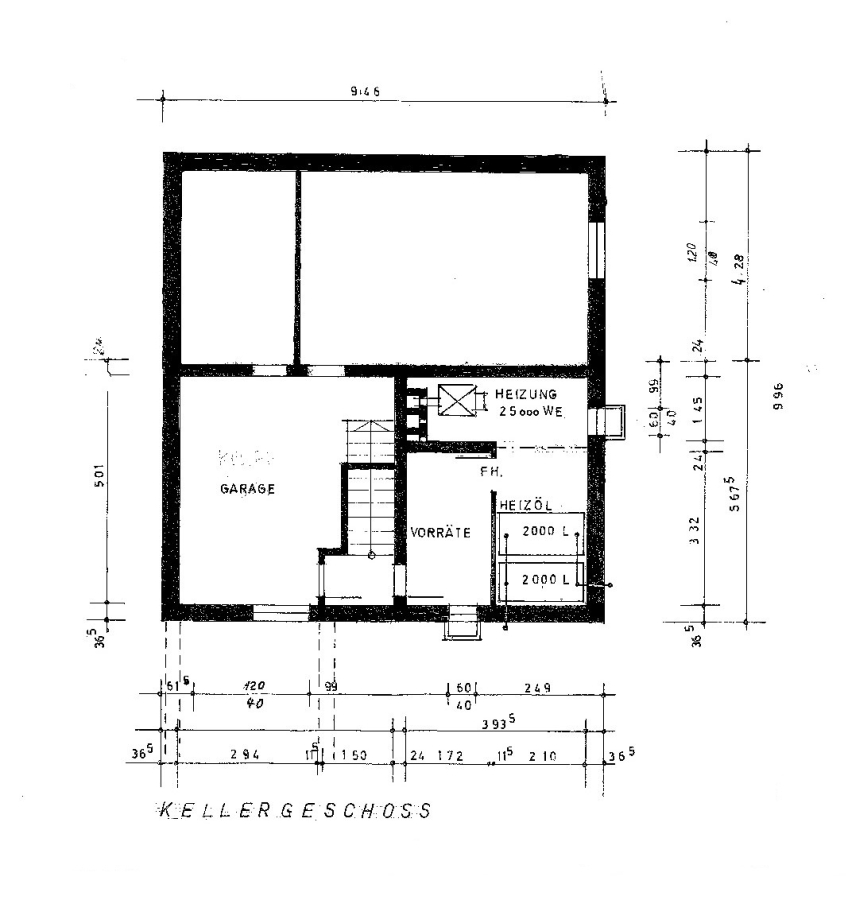
Das Haus ist voll unterkellert. Sie werden überrascht sein, wie viel Platz hier unten vorhanden ist. Neben einem Vorrats- und einem Hauswirtschaftsraum wartet ein Partyraum auf Sie. Er ist mit einer Bar ausgestattet und bietet sich als Raum zum Feiern an.
Auch die Ölheizung mit ihren Vorratstanks ist in den Kellerräumen untergebracht.

Im Außenbereich befindet sich die Garage mit einer gepflasterten Auffahrt, die gemeinsam mit dem Nachbarn genutzt wird.

Dieses Objekt vereint Wohnqualität und Familienfreundlichkeit in verkehrsgünstiger Lage. Eine ideale Gelegenheit für junge Familien, ihr Zuhause zu finden!

Haben wir Ihr Interesse geweckt? Dann stellen Sie eine Anfrage. Sie erhalten ein ausführliches Exposé mit Adresse, Lage und den Grundrissen. Machen Sie sich mit den Unterlagen vertraut und melden Sie sich gern zu einem Besichtigungstermin an. Wir freuen uns auf Sie!

Ausstattung

- Einbauküche mit allen E-Geräten aus ca. 2000
- Vollbad mit Fliesen aus dem Baujahr
- Dusche, Toilette und Waschtisch aus ca. 2013
- Gäste-WC aus dem Baujahr
- Fliesen im Flur, Wohnzimmer, Bad und Gäste-WC
- Teppich im Arbeitszimmer und gesamten Obergeschoss
- Kamin aus 1978
- zweifach verglaste Kunststofffenster aus 2013
- elektr. und manuelle Rollläden
- freischwebene Treppe in Holz-Metall-Konstruktion
- Betondecke zwischen Erdgeschoss und Dachgeschoss
- Betondecke zwischen Erdgeschoss und Kellergeschoss
- Ölheizung der Marke Sieger aus 2004
- zwei Kunststofföltanks mit je 2.000,00 ltr. Fassungsvermögen
- Warmwasser über die Heizung, Warmwasserspeicher ca. 135 ltr.
- Klinkerfassade aus dem Baujahr
- Dachboden gedämmt und verschalt
- dreiadrige Elektrik mit Kippsicherungen, ohne FI-Schalter
- Wasserleitungen aus dem Baujahr
- Terrasse in Südausrichtung mit Markise
- Gartenhaus
- Garage

Sonstige Informationen

Es liegt ein Energiebedarfsausweis vor.
Dieser ist gültig bis 23.6.2035.
Endenergiebedarf beträgt 191.11 kwh/(m²*a).
Wesentlicher Energieträger der Heizung ist Öl.
Das Baujahr des Objekts lt. Energieausweis ist 1977.
Die Energieeffizienzklasse ist F.

Laut Bauakte wurde ein Teilkeller mit ca. 52 m² genehmigt. Das Gebäude weist jedoch einen Vollkeller auf. Es ist somit eine größere Nutzfläche vorhanden.

Die jährliche Grundsteuer beträgt 624,81 € laut Grundsteuerbescheid von 2025.

SCHON GEWUSST...?

Wir veröffentlichen unsere Immobilienangebote zuerst auf unserer Website. Die Vermarktung in den bekannten Immobilien-Portalen findet – sofern erforderlich – bis zu einer Woche später statt.
Alle Immobilien finden Sie auf www.hechler-twachtmann.de. Sie möchten zukünftig kein Angebot verpassen? Dann legen Sie einfach ein Suchprofil an – ebenfalls online auf unserer Website.

Dieser Service ist natürlich kostenfrei und unverbindlich. Es gelten die AGB.

Lage

Arsten liegt im südlichen Bremer Stadtteil Obervieland auf der linken Weserseite und grenzt direkt an das Bundesland Niedersachsen. Arsten-West zählt zu einem der jüngeren Neubaugebiete Bremens. Geschichtlich ist es als das alte Kirchdorf Obervielands bekannt.

Der Ortsteil verfügt über Kindertagesstätten und verschiedene Schuleinrichtungen.

Diverse Sportvereine wie z.B. der TuS Komet Arsten sind hier ansässig und laden zu Freizeitaktivitäten ein.

Ärzte und Einkaufsmöglichkeiten sind fußläufig und das Gewerbegebiet in Habenhausen mit Outlets und einem größeren Einkaufscenter in wenigen Minuten mit dem Auto zu erreichen.

Mit der Straßenbahnlinie 4 gelangen Sie bequem in die Bremer Innenstadt. Die Autobahnanschlussstelle A1 ist nur wenige Fahrminuten entfernt.

Das Haus liegt an der Landstraße leicht nach hinten versetzt. Der Garten und die Terrasse liegen auf der Rückseite des Hauses.

Grundschule 150 m | Gymnasium 1,40 km | Flughafen 4,67 km | Fernbahnhof 1,83 km | Autobahn 320 m | Zentrum 5,92 km | Bus 130 m | Einkaufsmöglichkeiten 1,64 km 
Google Maps

Mit dem Laden der Karte akzeptieren Sie die Datenschutzerklärung von Google.
Mehr erfahren

Karte laden

Die dargestellte Position der Immobilie ist nur eine ungefähre Angabe.

Kontaktdaten

Anke Dreyer, Hechler & Twachtmann Immobilien GmbH

Direktanfrage

 SSL-verschlüsselt