Für Familien und Sportler/innen: Großes, schmuckes Haus nahe Sportplatz in Martfeld

27327 Martfeld, Einfamilienhaus zum Kauf

Energieausweis

  • Energieausweistyp
    Bedarfs­ausweis
  • Ausstellungsdatum
    ab dem 1.5.2014
  • Gültig bis
    20.10.2035
  • Gebäudeart
    Wohngebäude
  • Baujahr lt. Energieausweis
    1976
  • Primärenergieträger
    Öl
  • Endenergie­bedarf
    226,55 kWh/(m²·a)
  • Energie­effizienz­klasse
    G
0 25 50 75 100 125 150 175 200 225 250+ H G F E D C B A A+ H G F E D C B A A+ Endenergiebedarf 226,55 kWh/(m²·a)

Objektdaten

  • Objekt ID
    1005
  • Objekttypen
    Einfamilienhaus, Haus
  • Adresse
    27327 Martfeld
  • Wohnfläche ca.
    141 m²
  • Grund­stück ca.
    1.379 m²
  • Zimmer
    6
  • Schlafzimmer
    0,0
  • Badezimmer
    0,0
  • Balkone
    1
  • Terrassen
    1
  • Wesentlicher Energieträger
    Öl
  • Baujahr
    1976
  • Zustand
    renovierungsbedürftig
  • Käufer­provision
    3,57 % des Kaufpreises inkl. Mehrwertsteuer
  • Kaufpreis
    240.000 EUR

Ausstattung / Merkmale

  • Balkon
  • Kamin
  • Keller
  • Sauna
  • Terrasse

Objekt­beschreibung

Beschreibung

Suchen Sie ein großzügiges Wohnhaus mit eigenem Zimmer für jedes Familienmitglied? Haben Sie Freude an einem großen Garten und sind vielleicht auch sportlich interessiert? Dann hat dieses hübsche Wohnhaus ganz nah am Sportplatz von Martfeld vielleicht schon auf Sie gewartet. Die Ausstattung stammt zum Teil noch aus der Bauzeit von 1976, so dass umfangreiche Modernisierungen anstehen. Eine große Familie mit Kindern oder mehrere Generationen finden hier viel Platz zum Leben und Wohlfühlen. Das Grundstück ist fast komplett eingezäunt und damit ein herrlicher Auslauf für Ihren Hund.

Sind Sie interessiert? Dann rufen Sie uns an, um einen Termin für eine ausführliche Besichtigung zu vereinbaren.

Ausstattung

Das Haus hat noch den Charme der Bauzeit und wirkt ein bisschen dunkel. Umfangreiche Modernisierungen, auch in energetischer Hinsicht, sind notwendig.

- Ausstattung zum Teil noch aus der Bauzeit
- Heizkörper in Mauernischen
- Isolierverglaste Holzfenster (1976)
- Ein Bleiglasfenster in einem Raum mit Rundbogentür
- Fußbodenbeläge: PVC, Teppich, Fliesen
- Kaminanschluss im Wohnzimmer, hier muss die Kassette ausgetauscht werden
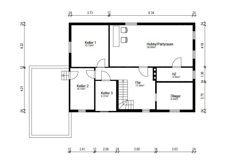
- Das Wohnhaus ist voll unterkellert, mit leichten Abplatzungen an den Kellerwänden.
- Im Keller sind ein Partyraum mit Bar und eine Sauna eingerichtet.
- Über eine kleine Treppe gelangt man vom Keller in die Garage
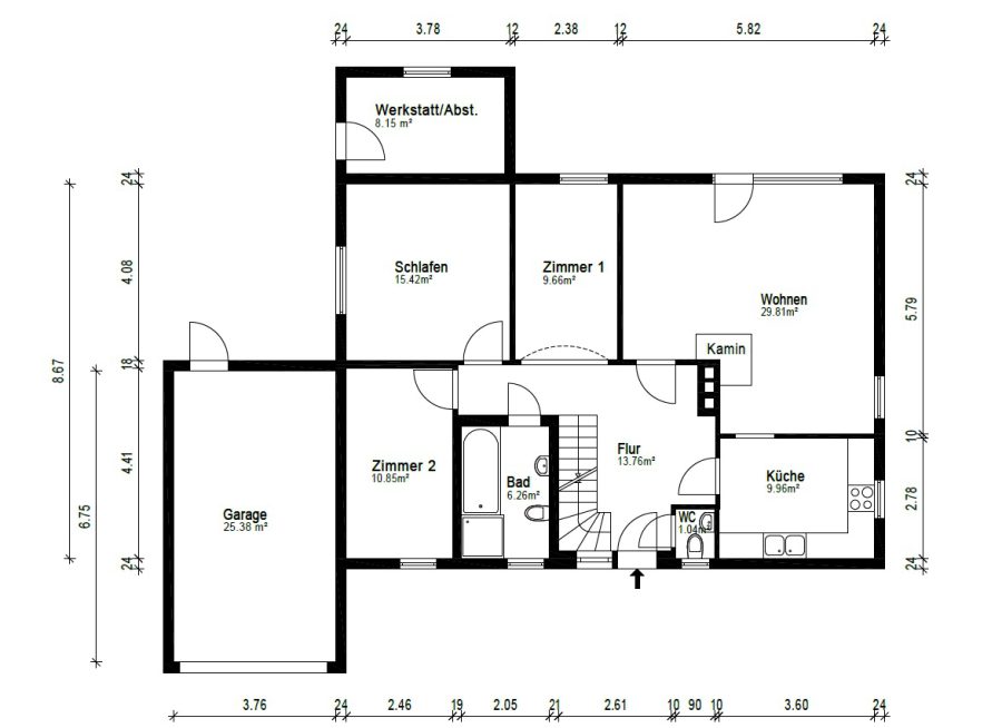
- Im Dachgeschoss befindet sich eine Loggia und eine Dachterrasse
- Das Dachgeschoss wurde in den 2000er Jahren zu Wohnzwecken ausgebaut
Hierfür liegt keine Baugenehmigung vor. Bei einer Nutzung als eigenständige (zweite) Wohneinheit ist nach Auskunft der Gemeinde Martfeld eine Nachgenehmigung erforderlich. Die Käufer übernehmen dann die nachträgliche Genehmigung durch die zuständige Behörde.

Haustechnik: Ölbrennwertheizung (2009), öffentliches Wasser, Kanalisation, Elektrizität.

Übergabe: Das Hausgrundstück ist bereits frei und kann kurzfristig nach Abschluss eines notariellen Kaufvertrages übergeben werden.

Sonstige Informationen

Die vom Käufer zu zahlende Grunderwerbsteuer beträgt 5 %, zusätzlich trägt der Käufer die Notar- und Gerichtskosten. Wir haben einen provisionspflichtigen Maklervertrag mit dem Verkäufer in gleicher Höhe abgeschlossen.

Dieses Angebot ist freibleibend. Wir bemühen uns, alle Angaben so vollständig und richtig wie möglich zu machen. Da wir uns hierbei auch auf die Informationen, die wir von Dritten (Verkäufern, Behörden, usw.) erhielten, stützen müssen, übernehmen wir keine Gewähr für die Richtigkeit der Angaben!

Lage

Grundstück: Das großzügige Grundstück hat eine Größe von 1.379 m² und bietet einen herrlichen Blick über die Felder. Die Hofauffahrt ist gepflastert. Der Vorgarten ist mit einigen Büschen und Sträuchern angelegt. Der hintere Teil des Gartens liegt in südwestlicher Richtung und ist mit Holz- und Maschendrahtzäunen eingezäunt. In einem kleinen Teich plätschert es gemütlich. Der ehemalige Gemüsegarten kann genutzt oder umgestaltet werden.

Nach Auskunft der Gemeinde Martfeld könnte der hintere Teil des Grundstücks als Bauplatz abgeteilt werden, um ein kleines Haus oder ein Tiny Haus aufzustellen. Für konkrete Bauvorhaben erkundigen Sie sich bitte unbedingt bei der Gemeinde Martfeld bzw. beim Landkreis Diepholz.

Nebengebäude: Eine Garage, ein Carport, eine Werkstatt, ein hochwertiges neues Gartenhaus, ein Gewächshaus, ein Geräteschuppen.

Lage: Das Hausgrundstück liegt in einer kleinen Nebenstraße, ganz in der Nähe des Sport- und Tennisplatzes. Zu den Spielzeiten sind Geräusche zu hören! Ebenfalls fußläufig befinden sich das Hallenbad, die Grundschule und der Kindergarten. Martfeld ist bekannt für seine attraktiven Kunst- und Kulturangebote und die vielfältigen Vereine, siehe www.martfeld.de. In dem stilvollen Dorf sind Ärzte und eine Apotheke ansässig sowie mehrere Einkaufsmöglichkeiten für den täglichen Bedarf. Weitere umfangreiche Einkaufsmöglichkeiten, eine vielfältige Gastronomie, Gymnasium, Waldorfschule, etc. befinden sich im nahen Luftkurort Bruchhausen-Vilsen. Das Dorf Martfeld gehört zur Samtgemeinde Bruchhausen-Vilsen und liegt ca. 7 km nordöstlich des Luftkurortes. Die Verkehrsanbindung nach Bremen und zu den umliegenden Autobahnen ist gut.

Google Maps

Mit dem Laden der Karte akzeptieren Sie die Datenschutzerklärung von Google.
Mehr erfahren

Karte laden

Die dargestellte Position der Immobilie ist nur eine ungefähre Angabe.

Kontaktdaten

Regina Pasenau,

Direktanfrage

 SSL-verschlüsselt