Blick von der Anhöhe: Komfortabler Walmdachbungalow mit Sauna

28857 Syke, Einfamilienhaus zum Kauf

Energieausweis

  • Energieausweistyp
    Bedarfs­ausweis
  • Ausstellungsdatum
    ab dem 1.5.2014
  • Gültig bis
    21.03.2036
  • Gebäudeart
    Wohngebäude
  • Baujahr lt. Energieausweis
    1972
  • Primärenergieträger
    Erdgas leicht
  • Endenergie­bedarf
    206,60 kWh/(m²·a)
  • Energie­effizienz­klasse
    G
0 25 50 75 100 125 150 175 200 225 250+ H G F E D C B A A+ H G F E D C B A A+ Endenergiebedarf 206,60 kWh/(m²·a)

Objektdaten

  • Objekt ID
    1074
  • Objekttypen
    Einfamilienhaus, Haus
  • Adresse
    28857 Syke
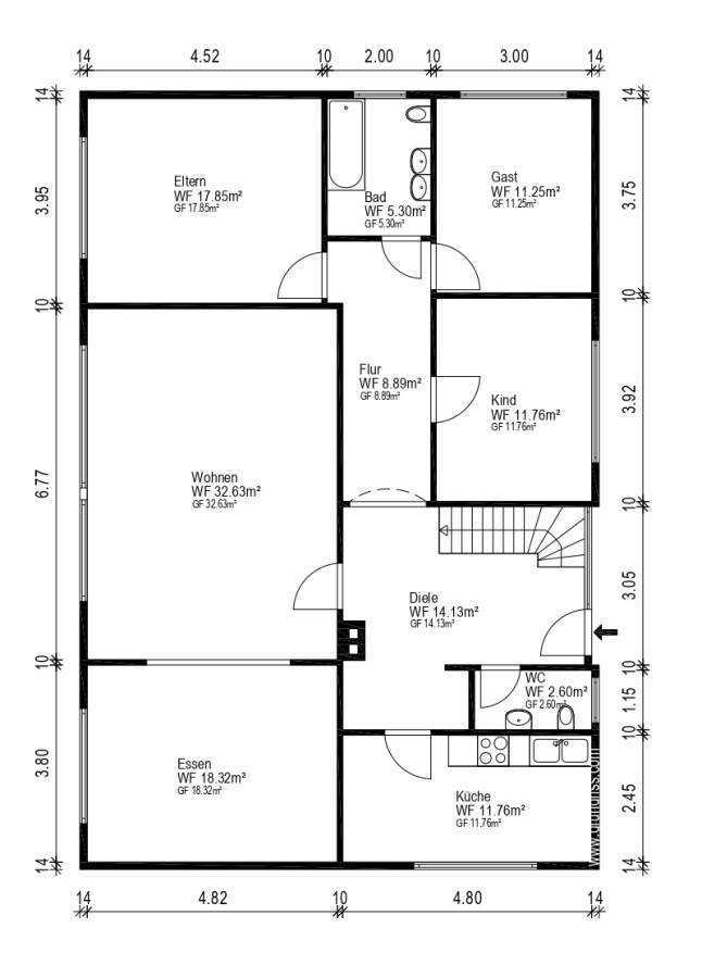
  • Wohnfläche ca.
    134 m²
  • Grund­stück ca.
    791 m²
  • Zimmer
    4
  • Schlafzimmer
    0,0
  • Badezimmer
    0,0
  • Baujahr
    1972
  • Zustand
    gepflegt
  • Käufer­provision
    3,57 % des Kaufpreises inkl. Mehrwertsteuer
  • Kaufpreis
    315.000 EUR

Objekt­beschreibung

Beschreibung

Ein wenig majestätisch liegt dieser top-gepflegte Bungalow auf einer Anhöhe, mit herrlichem weitem Blick. Er bietet ein komfortables Wohnen auf einer Ebene und ist ideal für eine entspannte Lebensphase. Die barrierearme Gestaltung ermöglicht ein sicheres und bequemes Zuhause. Dank des sehr guten Pflegezustands wäre der Bungalow sofort bezugsfertig, energetische Maßnahmen sind durch die überwiegende Ausstattung aus der Bauzeit jedoch sinnvoll. Der ruhige Wendehammer sorgt für eine angenehme, nahezu verkehrsfreie Wohnatmosphäre. Der Vollkeller eröffnet zusätzliche Flächen für Hobbys, Arbeiten oder Wellness – inklusive Sauna als besonderem Highlight. Abgerundet wird das Angebot durch den großzügigen Garten sowie eine große Garage - ideal für Paare, die komfortables Wohnen mit Ruhe und Privatsphäre verbinden möchten.

Haben wir Ihr Interesse geweckt? Dann vereinbaren Sie einen Besichtigungstermin mit uns – denn nur bei einer Innen- und Außenbesichtigung können Sie erkennen, ob die Immobilie Ihren Anforderungen und Wünschen entspricht. Rufen Sie uns an!

Ausstattung

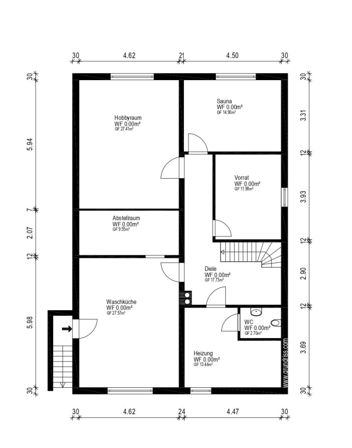
Es handelt sich um ein Nordhaus-Fertighaus aus dem Baujahr 1972 mit einer Wohnfläche von 134 m² im Erdgeschoss. Das Dach ist eingedeckt mit Tonfalzziegeln. Die Ausstattung ist überwiegend aus der Bauzeit. 1999 wurden die Bäder erneuert, der Anstrich von Außenwand und Fenster hat im Jahr 2021 stattgefunden. Das Erdgeschoss ist barrierearm, der Vollkeller durch eine massive Treppe zu erreichen. Der Dachboden ist nicht ausgebaut, aber durch die Dämmung mit Mineralwolle in Alufolie (1987) gut als Stau- oder Wäscheraum nutzbar.

Ausstattung:

- großer und lichtdurchfluteter Wohn- und Essbereich
- Flach-Heizkörper mit Einzelthermostaten
- isolierverglaste Holzfenster
- Küche ist gefliest
- Einbau-Schuhschränke in Flur, Wohn- und Schlafzimmer
- Decken überwiegend vertäfelt
- Badezimmer mit Dusche, zwei Waschbecken, WC, Handtuch-Heizung
- gefliester Keller
- Sauna inkl. Duschraum und separates WC mit Waschbecken im Keller
- Kellerfenster mit Außengitter
- Terrasse mit elektrischer Markise

Im Bereich neben der Kellertreppe sind leichte Feuchtigkeitserscheinungen sichtbar. Die Rollläden sind schwer zu bedienen.

Haustechnik: Gaszentralheizung von 2023, öffentliches Wasser, Elektrizität, Kanal

Übergabe: Das Hausgrundstück kann kurzfristig nach Abschluss eines notariellen Kaufvertrages übergeben werden.

Sonstige Informationen

Die vom Käufer zu zahlende Grunderwerbsteuer beträgt 5 %, zusätzlich trägt der Käufer die Notar- und Gerichtskosten. Wir haben einen provisionspflichtigen Maklervertrag mit dem Verkäufer in gleicher Höhe abgeschlossen.

Dieses Angebot ist freibleibend. Wir bemühen uns, alle Angaben so vollständig und richtig wie möglich zu machen. Da wir uns hierbei auch auf die Informationen, die wir von Dritten (Verkäufern, Behörden, usw.) erhielten, stützen müssen, übernehmen wir keine Gewähr für die Richtigkeit der Angaben.

Lage

Grundstück: Das Grundstück hat eine Größe von insgesamt 791 m² und liegt in einer verkehrsberuhigte Lage am Wendehammer. Der Zugang zum Haus ist über eine 6-stufige Treppe zu erreichen. In den Garten gelangt man nur über die Durchgangstür neben der Garage, er ist durch eine hohe Thujahecke abgeschirmt - d.h. nicht einsehbar und geschützt. Eine schöne Rotbuche, eine weiße Magnolie und ein Gingko-Baum bieten besondere Blickfänge, und zu dieser Jahreszeit beginnt die Blüte der Rhododendren. Der Zugang zur großen Terrasse mit Pergola ist durch eine 3-stufige Treppe zu erreichen.

Nebengebäude: große Garage mit Abstellraum (Baujahr 1973)

Lage: Die Stadt Syke liegt im Herzen des niedersächsischen Landkreises Diepholz, nur ca. 20 km südlich von Bremen. Als Teil der Metropolregion Bremen/Oldenburg verbindet Syke eine attraktive ländliche Umgebung mit der Nähe zu urbanen Zentren und einer ausgezeichneten Verkehrsanbindung. Syke verfügt über eine sehr gute Infrastruktur: Einkaufsmöglichkeiten, Ärzte, Banken sowie vielfältige Freizeit- und Sporteinrichtungen sind schnell erreichbar. Familien profitieren von einem breiten Angebot an Kindertagesstätten, Grundschulen sowie weiterführenden Schulen – darunter auch ein Gymnasium. Die Verkehrsanbindung ist hervorragend: Über die Bundesstraße B6 ist Bremen in ca. 25 Minuten mit dem Auto erreichbar. Der Bahnhof Syke bietet zudem regelmäßige Zugverbindungen in Richtung Bremen und Osnabrück. Die Umgebung ist geprägt von einer naturnahen Landschaft mit Wäldern, Feldern und kleinen Seen. Syke vereint urbanes Leben mit ländlicher Ruhe – ideal für alle, die naturnah wohnen und dennoch gut angebunden sein möchten. Weitere Informationen finden Sie unter: www.syke.de

Die dargestellte Position der Immobilie ist nur eine ungefähre Angabe.

Kontaktdaten

Meike Zum Vohrde, Benjes Immobilien GmbH

Direktanfrage

* Pflichtangaben
 SSL-verschlüsselt