Sanierungsobjekt + Bestand als Kapitalanlage in super Sichtlage!

27749 Delmenhorst, Haus zum Kauf

Energieausweis

  • Energieausweistyp
    Bedarfs­ausweis
  • Ausstellungsdatum
    ab dem 1.5.2014
  • Gültig bis
    10.04.2035
  • Gebäudeart
    Nichtwohngebäude
  • Baujahr lt. Energieausweis
    1900
  • Wesentlicher Energieträger
    Strom
  • Endenergie­bedarf Strom
    12,50 kWh/(m²·a)
  • Endenergie­bedarf Wärme
    52,60 kWh/(m²·a)
0 25 50 75 100 125 150 175 200 225 250+ H G F E D C B A A+ H G F E D C B A A+ Endenergiebedarf Strom 12,50 kWh/(m²·a) Endenergiebedarf Wärme 52,60 kWh/(m²·a)

Objektdaten

  • Objekt ID
    SW002K
  • Objekttyp
    Haus
  • Adresse
    27749 Delmenhorst
    Niedersachsen
  • Etagen im Haus
    2
  • Grund­stück ca.
    850 m²
  • Gesamtfläche ca.
    353 m²
  • Zimmer
    9
  • Schlafzimmer
    0,0
  • Badezimmer
    0,0
  • Wesentlicher Energieträger
    Strom
  • Umgebung
    Grundschule: 0,2 km
    Realschule: 0,3 km
    Gymnasium: 0,9 km
  • Baujahr
    1900
  • Bebaubar nach
    § 34 Nachbarschaftsbebauung
  • Erschließung
    vollerschlossen
  • Verfügbar ab
    ab sofort
  • Käufer­provision
    Im Erfolgsfall sind vom Käufer 3,57 % inkl. MwSt. vom Kaufpreis zu zahlen. Mit dem Verkäufer wurde ein Maklerauftrag in gleicher Höhe abgeschlossen.
  • Kaufpreis
    349.000 EUR

Ausstattung / Merkmale

  • Außenstellplatz
  • Einliegerwohnung
  • Gäste-WC
  • Teilunterkellert

Objekt­beschreibung

Beschreibung

Dieses großzügige Eckgrundstück mit einer Gesamtfläche von etwa 850 m² bietet eine einzigartige Gelegenheit im Herzen von Delmenhorst. Die zentrale Lage an einer stark frequentierten Hauptverkehrsstraße macht es zu einem idealen Standort für vielfältige Bauvorhaben.

Auf dem Grundstück befinden sich zwei Gebäude:

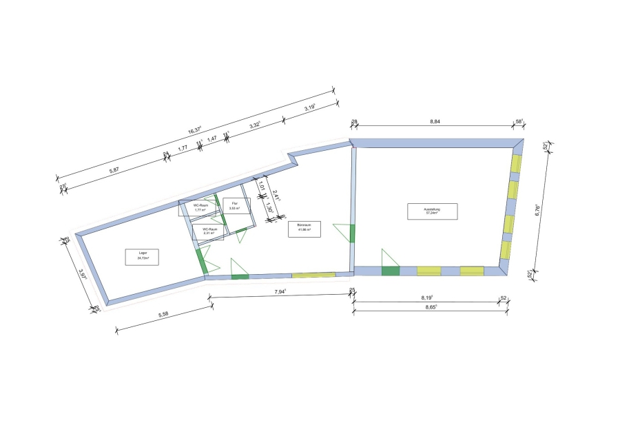
- Im vorderen Bereich steht ein historisches Wohn- und Geschäftshaus, das vermutlich Anfang des 20. Jahrhunderts errichtet wurde. Dieses Gebäude ist stark sanierungsbedürftig und bietet Potenzial für kreative Umgestaltungen oder einen Neubau. Der erste Eintrag in der Bauakte datiert auf 1962, als die Imbissfläche ausgebaut wurde. Diese Fläche befindet sich derzeit im Rohbauzustand. Das Erdgeschoss beherbergt vier ungeheizte Lagerräume, während im Dachgeschoss eine leerstehende Wohnung auf neue Nutzungsmöglichkeiten wartet.

- Im hinteren Bereich des Grundstücks befindet sich ein modernes, renoviertes Lager- und Werkstattgebäude mit einer Fläche von ca. 172 m². Dieses Gebäude wurde 1995 umfassend umgebaut und ist bis zum 31.12.2029 vermietet, mit einer Option auf Verlängerung. Die Mieteinnahmen aus diesem Objekt bieten eine attraktive finanzielle Grundlage für Investoren.

Das Grundstück liegt im Innenbereich gemäß § 34 BauGB, was bedeutet, dass Bauvorhaben möglich sind, sofern sie sich harmonisch in die bestehende Umgebung einfügen. Die Nachbarschaft ist geprägt von Wohn- und Geschäftshäusern mit eingeschossiger Bauweise und ausgebautem Dachgeschoss oder Staffelgeschoss, was eine flexible Nutzung ermöglicht.

Nutzen Sie diese einmalige Gelegenheit, Ihr Neubauprojekt, oder die Sanierung des Vordergebäudes an einem zentralen Standort zu realisieren und gleichzeitig von den stabilen Mieteinnahmen des bestehenden Hintergebäudes zu profitieren. Vereinbaren Sie noch heute einen Besichtigungstermin und lassen Sie sich von den Möglichkeiten dieses begehrten Grundstücks inspirieren.

Ausstattung

Vorderhaus - leerstehend
- Baujahr vermutlich Anfang 1900
- Ausbau Imbiss 1962 - aktuell im Rohbauzustand
- Kunststofftüren 1995/2011, eine alte Haustür aus Holz
- einfach und zweifach verglaste Holzfenster
- Elektrik aus 1995 Aufputz
- Wasserleitungen aus Kupfer
- keine Heizung vorhanden!
- Holzdecke
- rote Tondachpfannen, Baujahr unbekannt
- schwarze Betondachpfannen aus 2020
- Teilkeller
- alte und aktuelle Feuchtigkeitsschäden

Hinterhaus, vermietet
- ursprüngliches Baujahr unbekannt
- Um- und Ausbau in 1995
- 3 Ausstellungs- und Lagerräume
- 2 Archivräume
- 2 WC´s
- Fliesenböden
- Kunststoffisofenster aus 1996
- Wolf Wärmepumpe aus 2024
- Klimaanlage
- Satteldach mit asbestfreien Faserzementplatten in rot
- Flachdach mit Dachpappe
- Lagerfläche und Parkplatz im Außenbereich
- Garage mit asbesthaltigem Dach

Sonstige Informationen

Es liegt ein Energiebedarfsausweis vor.
Dieser ist gültig bis 10.4.2035.
Endenergiebedarf für die Wärme beträgt 52.60 kwh/(m²*a).
Endenergiebedarf für den Strom beträgt 12.50 kwh/(m²*a).
Wesentlicher Energieträger der Heizung ist .

Das Vorderhaus ist frei. Die Gesamtfläche beträgt geschätzt ca. 182 m², es liegt keine Flächenberechnung vor!
Das Hinterhaus ist mit ca. 171 m² seit 04/2021 bis 12/2029 für € 16.200,- netto p.a. vermietet. Es handelt sich um einen Staffelmietvertrag, wonach sich die Miete ab 01/2027 auf € 16.800,- netto p.a. erhöht.

SCHON GEWUSST...?

Wir veröffentlichen unsere Immobilienangebote zuerst auf unserer Website. Die Vermarktung in den bekannten Immobilien-Portalen findet – sofern erforderlich – bis zu einer Woche später statt.
Alle Immobilien finden Sie auf www.hechler-twachtmann.de. Sie möchten zukünftig kein Angebot verpassen? Dann legen Sie einfach ein Suchprofil an – ebenfalls online auf unserer Website.

Dieser Service ist natürlich kostenfrei und unverbindlich. Es gelten die AGB.

Lage

Delmenhorst liegt zentral zwischen Oldenburg und Bremen und bietet eine optimale Verkehrsanbindung sowohl zu den Autobahnen A1 und A28 als auch an den Schienenverkehr.

Das Eckgrundstück liegt in einer lebendigen und zentralen Lage von Delmenhorst, direkt an einer stark frequentierten Hauptverkehrsstraße, die eine hervorragende Sichtbarkeit und Erreichbarkeit bietet. Die Umgebung ist geprägt von einer Mischung aus Wohn- und Geschäftshäusern, die eine dynamische und vielfältige Nachbarschaft schaffen. In unmittelbarer Nähe befinden sich zahlreiche Einkaufsmöglichkeiten, Cafés und Restaurants, die den täglichen Bedarf abdecken und zum Verweilen einladen. Öffentliche Verkehrsmittel sind bequem zu Fuß erreichbar, was eine schnelle Anbindung an das Stadtzentrum und die umliegenden Gebiete gewährleistet. Schulen, Kindergärten und Freizeiteinrichtungen sind ebenfalls in der Nähe, was die Lage besonders attraktiv für Familien und Investoren macht.

Kindergarten 800 m | Grundschule 150 m | Realschule 300 m | Gymnasium 900 m 

Die dargestellte Position der Immobilie ist nur eine ungefähre Angabe.

Kontaktdaten

Saskia Wessel, Hechler & Twachtmann Immobilien GmbH

Direktanfrage

* Pflichtangaben
 SSL-verschlüsselt