Romantisches Landhaus mit Charme und parkähnlichem Grundstück

27246 Borstel, Landhaus zum Kauf

Energieausweis

  • Energieausweistyp
    Bedarfs­ausweis
  • Ausstellungsdatum
    ab dem 1.5.2014
  • Gültig bis
    01.05.2035
  • Gebäudeart
    Wohngebäude
  • Baujahr lt. Energieausweis
    1900
  • Primärenergieträger
    Erdgas leicht
  • Endenergie­bedarf
    236,30 kWh/(m²·a)
  • Energie­effizienz­klasse
    G
0 25 50 75 100 125 150 175 200 225 250+ H G F E D C B A A+ H G F E D C B A A+ Endenergiebedarf 236,30 kWh/(m²·a)

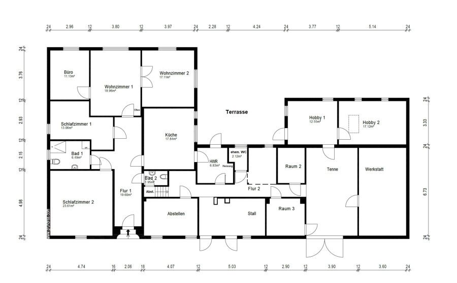
Objektdaten

  • Objekt ID
    1070
  • Objekttypen
    Haus, Landhaus
  • Adresse
    27246 Borstel
  • Wohnfläche ca.
    166 m²
  • Grund­stück ca.
    2.588 m²
  • Zimmer
    5
  • Schlafzimmer
    0,0
  • Badezimmer
    0,0
  • Baujahr
    1900
  • Käufer­provision
    3,57 % des Kaufpreises inkl. Mehrwertsteuer
  • Kaufpreis
    225.000 EUR

Objekt­beschreibung

Beschreibung

Ein Ort zum Ankommen und Aufblühen: Dieses idyllische Landhaus aus dem Jahr ca. 1900 überzeugt mit einem großzügigen und liebevoll angelegten Garten, umgeben von ländlicher Ruhe! Das Wohnhaus wurde 1959 und ab 1982 umfangreich renoviert und vereint heute stilvolle Elemente und urigen Charme! Genießen Sie den herrlichen Blick in den traumhaften Garten – ob von der sonnigen Terrasse oder dem gemütlichen Wohnzimmer aus. Zwei ausgebaute Zimmer im Anbau bieten Ihnen zusätzlichen Raum, um Ihre kreativen Hobbys zu entfalten oder individuelle Wohnideen zu verwirklichen. Renovierungen für den heutigen Wohnstandard sind erforderlich.

Haben wir Ihr Interesse geweckt? Dann rufen Sie uns bitte umgehend an, um einen Termin für eine ausführliche Besichtigung zu vereinbaren.

Ausstattung

Das Wohnhaus wurde ca. 1900 erbaut, es wurde 1959 und ab 1982 umfangreich renoviert.

- Ausstattung im Landhausstil
- Dreifachverglaste Holzfenster mit Espagnoletten-Fensterverriegelung von 1982
- Küche mit englischen Fenstern
- Kieferntüren von ca. 1997, teilweise mit Glaseinsätzen
- Parkettboden und Fliesen
- Kachelofen im Wohnzimmer
- Decken und Schrägen überwiegend mit Holz vertäfelt
- einfaches Badezimmer mit Wanne und Dusche
- kleines Gäste-WC separat
- Dacheindeckung mit Tonfalzziegeln
- Teilweise erneuertes Dach

Haustechnik:
Gasheizung von 2021, 300 l Wassertank, Kanal, öffentliches Wasser, Strom, Telefon, Glasfaser, Ofenanschluss und Gasheizung im Gartenhaus.

Energieausweis Gartenhaus: Baujahr 2000, Gasheizung von 2000, Bedarfsausweis, 188 kWh/(m².a), E, Energieausweisdatum: 02.05.2025, gültig bis: 01.05.2035.

Übergabe:
Nach Absprache.

Sonstige Informationen

Die vom Käufer zu zahlende Grunderwerbsteuer beträgt 5 %, zusätzlich trägt der Käufer die Notar- und Gerichtskosten. Wir haben einen provisionspflichtigen Maklervertrag mit dem Verkäufer in gleicher Höhe abgeschlossen. Dieses Angebot ist freibleibend. Wir bemühen uns, alle Angaben so vollständig und richtig wie möglich zu machen. Da wir uns hierbei auch auf die Informationen, die wir von Dritten (Verkäufern, Behörden, usw.) erhielten, stützen müssen, übernehmen wir keine Gewähr für die Richtigkeit der Angaben.

Lage

Grundstück:
Ein besonderes Highlight ist der 2.588 m² große, weitläufige Garten: Ursprünglich als englischer Garten parkähnlich angelegt, begeistert er heute mit einer Vielzahl an Sträuchern, liebevoll verwachsenen Wegen und romantischen Rückzugsorten – ein Paradies für Gartenliebhaber und alle, die das Besondere suchen. Hier finden Sie historische Rosen, viele Funkien, Taglilien, Magnolien- und Obstbäume. Als Bodendecker sind einige Frühjahrsblüher, Storchenschnabel und Glockenblumen gepflanzt.

Nebengebäude:
Der einstige Stallanbau wurde umgestaltet und wird heute als Werkstatt, Garage und mit zwei Hobby- bzw. weiteren Wohnräumen genutzt. Auf dem weitläufigen Grundstück befinden sich neben dem kleinen Gästehaus ein Gartenhaus, drei Holzhütten sowie zwei Gewächshäuser. Das gemütliche Gäste- bzw. Gartenhaus bietet einen einladenden Ort für Gäste, kreative Hobbys oder einen persönlichen Rückzugsort.

Lage:
Das Hausgrundstück steht in Sieden, einem Ortsteil der Gemeinde Borstel, etwa in der Mitte zwischen den Städten Nienburg/Weser und Sulingen. In der Nähe stehen einige Windräder. Die Gemeinde Borstel hat ca. 1.300 Einwohner und gehört zur Samtgemeinde Siedenburg. Die Infrastruktur in Borstel ist für einen Ort dieser Größe gut, angefangen bei den Einkaufsmöglichkeiten für den täglichen Bedarf, Banken, kleineren Dienstleistungs- und Handwerksbetrieben über Kindergarten, Grundschule, Sport- und Freizeiteinrichtungen (kleines Hallenschwimmbad im Ort!) bis hin zu der sehr guten Verkehrsanbindung über die Bundesstraße 214. Die Landschaft ist geprägt von Feldern und Weiden, die von großen Mischwäldern und einer weitläufigen Moorlandschaft unterbrochen werden. In dieser Landschaft kommen Naturliebhaber und Ruheliebende, sowie Menschen, welche die Nähe von Städten zum Wohlfühlen brauchen, gleichermaßen auf ihre Kosten. Erfahren Sie mehr unter www.borstel-online.de.

Die dargestellte Position der Immobilie ist nur eine ungefähre Angabe.

Kontaktdaten

Nina Matties,

Direktanfrage

* Pflichtangaben
 SSL-verschlüsselt