Mehrfamilienhaus mit Potential in Peterswerder!

28205 Bremen, Mehrfamilienhaus zum Kauf

Energieausweis

  • Energieausweistyp
    Bedarfs­ausweis
  • Ausstellungsdatum
    ab dem 1.5.2014
  • Gültig bis
    23.04.2035
  • Gebäudeart
    Wohngebäude
  • Baujahr lt. Energieausweis
    1906
  • Primärenergieträger
    Gas
  • Endenergie­bedarf
    152,28 kWh/(m²·a)
  • Energie­effizienz­klasse
    E
0 25 50 75 100 125 150 175 200 225 250+ H G F E D C B A A+ H G F E D C B A A+ Endenergiebedarf 152,28 kWh/(m²·a)

Objektdaten

  • Objekt ID
    KO043K
  • Objekttypen
    Haus, Mehrfamilienhaus
  • Adresse
    (Bremen-Hastedt/Peterswerder)
    28205 Bremen
    Bremen
  • Etagen im Haus
    5
  • Wohnfläche ca.
    182 m²
  • Grund­stück ca.
    171 m²
  • Nutzfläche ca.
    108 m²
  • Gesamtfläche ca.
    290 m²
  • Zimmer
    8
  • Schlafzimmer
    6
  • Badezimmer
    4
  • Balkone
    1
  • Terrassen
    1
  • Heizungsart
    Zentralheizung
  • Wesentlicher Energieträger
    Gas
  • Umgebung
    Grundschule: 0,5 km
    Realschule: 1,6 km
    Gymnasium: 1,6 km
  • Baujahr
    1908
  • Zustand
    gepflegt
  • Verfügbar ab
    ab sofort
  • Käufer­provision
    Im Erfolgsfall sind vom Käufer 5,95 % inkl. MwSt. vom Kaufpreis zu zahlen.
  • Kaufpreis
    499.000 EUR

Ausstattung / Merkmale

  • Altbau
  • Balkon
  • Gartennutzung
  • Gäste-WC
  • Keller
  • Terrasse

Objekt­beschreibung

Beschreibung

Dieses charmante Mehrfamilienhaus aus dem Jahr 1908 befindet sich auf einem ca. 171 m² großen Grundstück im begehrten Bremer Stadtteil Peterswerder.
Nach einer umfassenden Umgestaltung im Jahr 1978 beherbergt das Gebäude heute ein Ein-Zimmer-Apartment im Souterrain, eine Gewerbeeinheit im Hochparterre sowie eine Wohnung im Obergeschoss/Dachgeschoss, die zusammen eine großzügige Wohn- und Nutzfläche von 290 m² bieten.

Das Haus befindet sich in einem gepflegten Zustand, erfordert jedoch teilweise Renovierungs- und Sanierungsarbeiten:
Die Fenster im Haus sind teils einfachverglast, während die doppelverglasten Holzfenster aus den Jahren 1975 bis 1985 stammen. Ein Kunststofffenster wurde 2002 hinzugefügt. In den 2000er Jahren wurden die Gastherme erneuert, das Dach neu eingedeckt und gedämmt sowie der Spitzboden zu Wohnzwecken ausgebaut. Die Bäder stammen aus den 1970er bis 2000er Jahren. Die Erneuerung der Elektrik, Reparaturarbeiten an der vorderen Fassade sowie die üblichen Maler- und Bodenbelagsarbeiten müssen vom Käufer berücksichtigt werden. Weiter ist im Souterrain aufsteigende Feuchtigkeite vorhanden und der Boden im Wohnraum des Apartments im Souterrain ist abgesackt. Die Holzbohlen müssen ersetzt werden, ein Kostenvoranschlag liegt in Kürze vor.

Jede Etage verfügt über einen eigenen Stromzähler, jedoch fehlen separate Wasser- und Wärmemengenzähler für die einzelnen Einheiten.

Der Zugang zum Haus erfolgt über das Souterrain, von wo aus alle Etagen über ein zentrales Treppenhaus erreichbar sind.

Im Souterrain befinden sich ein großer Kellerraum und ein Ein-Zimmer-Apartment mit Duschbad, Abstellraum und Küche. Hier möchten wir Ihnen nicht vorenthalten, dass aufsteigende Feuchtigkeit vorhanden ist. Der eingewachsene Hofgarten ist von diesem Apartment aus zugänglich.

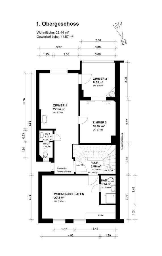
Im Hochparterre liegen eine Gewerbeeinheit mit zwei Räumen und Kunden-WC sowie ein weiteres Ein-Zimmer-Apartment mit Pantryküche und Duschbad, welches Anfang der 2000er Jahre aus einem dritten Raum der Gewerbeeinheit umgewandelt wurde.

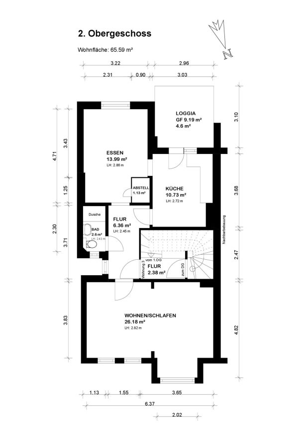
Das erste Obergeschoss beherbergt eine attraktive Zwei-Zimmer-Wohnung mit Duschbad und einer großzügigen, überdachten Loggia.

Im zweiten Obergeschoss befinden sich vier Zimmer, von denen eines mit Küchenanschlüssen ausgestattet ist, was die Möglichkeit bietet, eine weitere abgeschlossene Wohnung zu schaffen. Ein älteres Wannenbad ist ebenfalls vorhanden.

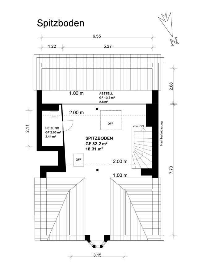
Der Zugang zum ausgebauten Spitzboden erfolgt über den Flur der Wohnung im zweiten Obergeschoss. Hier befindet sich ein schöner Raum, der bis in den First ausgebaut ist. Die Heizungsanlage mit Warmwasserspeicher ist in einer Abseite untergebracht.

Mit etwas handwerklichem Geschick kann dieses Haus zu einem wunderbaren Zuhause für eine große Familie werden, die Wohnen und Arbeiten verbinden möchte. Alternativ bietet sich die Möglichkeit, ein Mehrfamilienhaus zu gestalten, wobei die entsprechenden Genehmigungen erforderlich sind.

Ausstattung

Ein-Zimmer-Apartment im Souterrain, ca. 33 m²
- weiß gefliestes Duschbad
- Einbauküche in Bucheoptik
- Abstellraum
- aufsteigende Feuchtigkeit im Wohnraum
- Laminat- und Fliesenboden
- Zugang zum Hof-Garten

Friseursalon im Hochparterre, ca. 44 m²
- zwei Räume
- WC aus 1978
- Laminat- und Fliesenboden
- Ein-Zimmer-Apartment (ca. 23 m²) mit weiß gefliestem Duschbad, Einbauküche in Bucheoptik, Laminatboden und originale Stuckdecke

Sechs-Zimmer-Wohnung im 1. Obergeschoss/Dachgeschoss/ausgebauter Spitzboden, ca. 147 m² - teilbar
- Einbauküche teilweise vorhanden im 1. OG
- Küchenanschluss in einem Zimmer im DG
- weiß/blau gefliestes Duschbad, ca. aus den 1990er Jahren im 1. OG
- blau gefliestes Duschbad, ca. aus den 1970er Jahren im DG
- Laminat- Dielen- und Parkettboden
- große, überdachte Loggia

Allgemein
- Holzisofenster ca. aus den 1975 bis 1985er Jahren
- teilweise einfach verglaste Fenster
- ein Kunststofffensterelement aus 2002
- Schaufensterfront im Souterrain aus 1978
- Viessman Gasheizung aus 2001
- 160l Warmwassertank
- 2- und 3 adrige Elektrik, Kipp- und Drehsicherungen ohne FI
- Stromzähler je Etage
- Holzdecken
- ein Kellerraum
- Dacheindeckung inkl. Dämmung Anfang 2000er
- originale Fassade aus dem Baujahr mit Stuckelementen
- eingewachsener Hofgarten

Sonstige Informationen

Es liegt ein Energiebedarfsausweis vor.
Dieser ist gültig bis 23.4.2035.
Endenergiebedarf beträgt 152.28 kwh/(m²*a).
Wesentlicher Energieträger der Heizung ist Gas.
Das Baujahr des Objekts lt. Energieausweis ist 1906.
Die Energieeffizienzklasse ist E.

Das Haus wird frei geliefert!

Die jährliche Grundsteuer beträgt laut Bescheid aus 2025: € 695,32

SCHON GEWUSST...?

Wir veröffentlichen unsere Immobilienangebote zuerst auf unserer Website. Die Vermarktung in den bekannten Immobilien-Portalen findet – sofern erforderlich – bis zu einer Woche später statt.
Alle Immobilien finden Sie auf www.hechler-twachtmann.de. Sie möchten zukünftig kein Angebot verpassen? Dann legen Sie einfach ein Suchprofil an – ebenfalls online auf unserer Website.

Dieser Service ist natürlich kostenfrei und unverbindlich. Es gelten die AGB.

Lage

Der Stadtteil Peterswerder zeichnet sich speziell durch die Nähe zur Weser und zum "Viertel" aus. Hier prägt geschäftiges Treiben das Stadtbild. Es gibt noch eine bunte Mischung aus Altbremer Häusern und gepflegten Wohnanlagen sowie großen Straßenzügen und kleinen Seitenstraßen. Alle Geschäfte des täglichen Bedarfs liegen quasi direkt vor der Haustür.

Ebenso sind Sie mit Bus- und Bahnverbindungen gut versorgt und schnell in der City oder am Bahnhof. Sogar Fußballfans kommen auf ihre Kosten: das Bremer Weserstadion ist nicht weit entfernt. Cafés, Restaurants und Kneipen - dies alles finden Sie hier. Auch die Versorgung mit Ärzten und Apotheken ist optimal.

Grundschule 500 m | Realschule 1,60 km | Gymnasium 1,60 km 
Google Maps

Mit dem Laden der Karte akzeptieren Sie die Datenschutzerklärung von Google.
Mehr erfahren

Karte laden

Die dargestellte Position der Immobilie ist nur eine ungefähre Angabe.

Kontaktdaten

Katrin Bruns, Hechler & Twachtmann Immobilien GmbH

Direktanfrage

 SSL-verschlüsselt