Großzügiges Wohnen im Effizienzhaus 40 EE – Die nachhaltige Einfamilienhaus-Alternative

28816 Stuhr, Dachgeschosswohnung zum Kauf

Energieausweis

nicht erforderlich

Objektdaten

  • Objekt ID
    HC044K
  • Objekttypen
    Dachgeschosswohnung, Wohnung
  • Adresse
    (Stuhr-Heiligenrode)
    28816 Stuhr
    Niedersachsen
  • Wohnfläche ca.
    112 m²
  • Nutzfläche ca.
    4 m²
  • Balkon-/Terrassen­fläche ca.
    6 m²
  • Zimmer
    4
  • Schlafzimmer
    3
  • Badezimmer
    1
  • Balkone
    1
  • Heizungsart
    Fußbodenheizung
  • Wesentlicher Energieträger
    Luft/Wasser Wärmepumpe
  • Umgebung
    Grundschule: 1,2 km
    Realschule: 5,3 km
    Gymnasium: 5,3 km
  • Baujahr
    2023
  • Verfügbar ab
    vorauss. April 2025
  • Kaufpreis
    409.000 EUR

Ausstattung / Merkmale

  • Außenstellplatz
  • Balkon
  • Gäste-WC
  • Kein Keller
  • Neubau
  • Offene Küche

Objekt­beschreibung

Beschreibung

In einer ruhigen Wohnsiedlung im Stuhrer Ortsteil Heiligenrode können wir Ihnen ab sofort dieses interessante Neubauprojekt vorstellen!

Das zeitgemäße Wohnhaus mit lediglich vier Wohneinheiten entsteht auf einem rund 1.162m² großen Grundstück und wird voraussichtlich im April 2025 bezugsfertig sein!

Der Bau erfolgt unter Berücksichtigung des aktuellen Gebäudeenergiegesetzes (GEG) und erfüllt die Anforderungen eines Effizienzhaus 40 EE. Neben einer besonders guten Dämmung kommt als Wärmeerzeuger für Heizung und Warmwasser eine energieeffiziente Luft-Wasser-Wärmepumpe zum Einsatz, welche die Umgebungsluft als Wärmequelle nutzt. Vorteile dieser Anlage sind u.a. langfristig niedrige Heizkosten sowie eine reduzierte Umweltbelastung durch CO₂-Emissionen. Zusätzlich wird die Energieeffizienz durch eine Photovoltaikanlage ergänzt, die den Strom für Heizung und Allgemeinstrom liefern wird!

....

Willkommen in Ihrem neuen Familiendomizil! Diese großzügige Vier-Zimmer Neubauwohnung besticht mit einer durchdachten Raumaufteilung, die Funktionalität und Komfort optimal vereint:

Ein attraktiver Wohnbereich bildet den Mittelpunkt der Wohnung und lädt zu gemütlichen Familienmomenten ein. Die offene und moderne Küche schafft genügend Raum für gemeinsame Abende mit der ganzen Familie. Das Elternschlafzimmer ist ein Rückzugsort der Ruhe und Entspannung. Zwei weitere Zimmer können individuell als Kinderzimmer, Gäste- oder als Arbeitszimmer genutzt werden. Waschmaschinen und Trockneranschluss befinden sich im gefliesten Hauswirtschaftsraum. Zusätzlich zum Duschbad neben dem Elternschafzimmer befindet sich in der Wohnung ein Gäste-WC im Eingangsbereich. Ein großzügiger Balkon schafft Raum für entspannte Momente im Freien.

Selbstverständlich sind alle Einheiten mit einer Fußbodenheizung ausgestattet, jeweils regulierbar über Raumthermostate.

Ausstattung

• KfW-Effizienzhaus 40 EE – klimafreundlicher Neubau
• Wohnbereiche mit offener Küche
• Tageslicht-Duschbäder mit Handtuchheizkörper
• Gäste-WCs
• Innenputz in der Qualitätsstufe Q2
• Fliesenböden in Bad/Gäste-WC/HWR
• Hauswirtschaftsräume mit Trockner- und Waschmaschinenanschlüssen
• große Balkone mit Glasgeländer
• Fensterelemente mit Drei-Scheiben-Isolierverglasung
• Fußbodenheizung mit Raumthermostaten
• zentrale Luft-Wasser-Wärmepumpe mit Warmwasserspeicher
• Photovoltaikanlage
• zweischaliges Mauerwerk mit Verblender
• u.v.m.

Je Pkw-Stellplatz ist ein Kaufpreis von € 5.000,- zusätzlich zu entrichten.

Die Preise für die Wohnungen beinhalten Fliesen in Bad/Gäste-WC mit einem Bruttomaterialpreis von € 50,-/m².

Die Maler- und Bodenarbeiten sind nicht im Kaufpreis enthalten, diese können jedoch zusätzlich beim Bauträger in Auftrag gegeben werden.

Sonstige Informationen

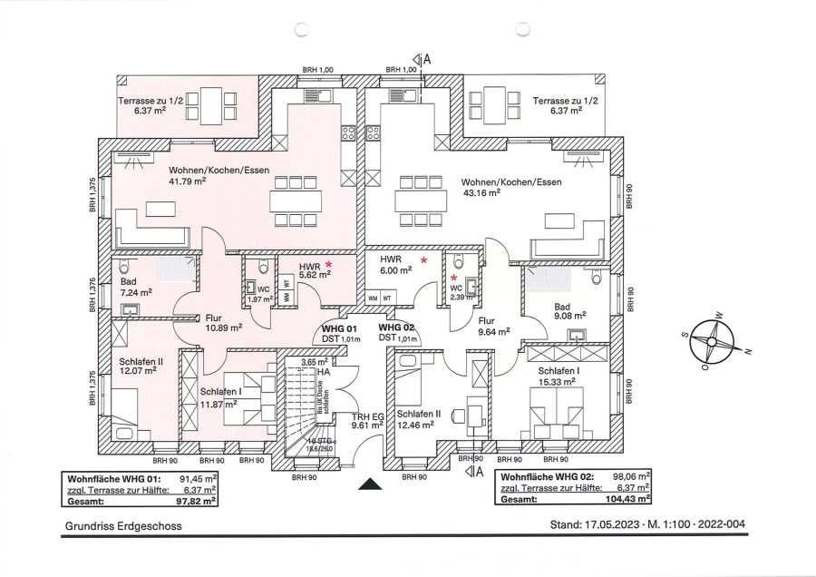
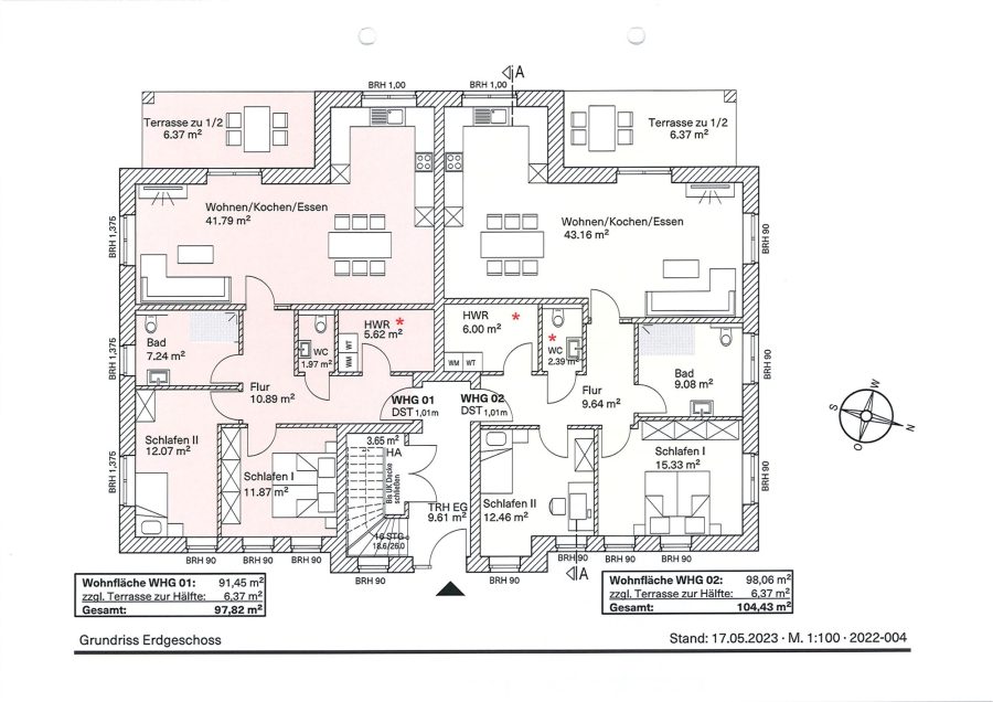
Erdgeschoss:
Wohnung 1: 3 Zimmer | ca. 97 m² | € 369.000,- zzgl. Maler- und Bodenbelagsarbeiten
Wohnung 2: Verkauft!

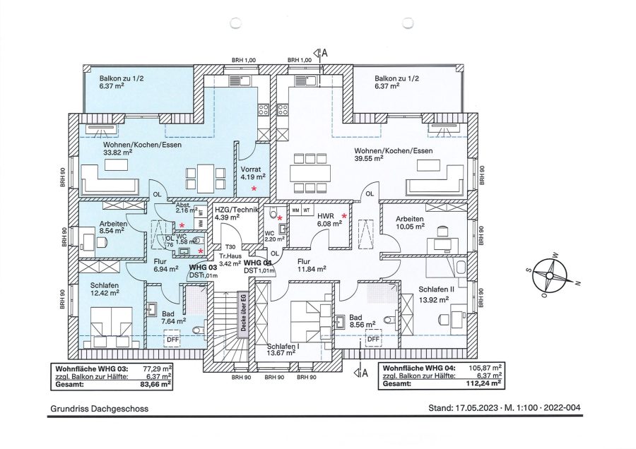
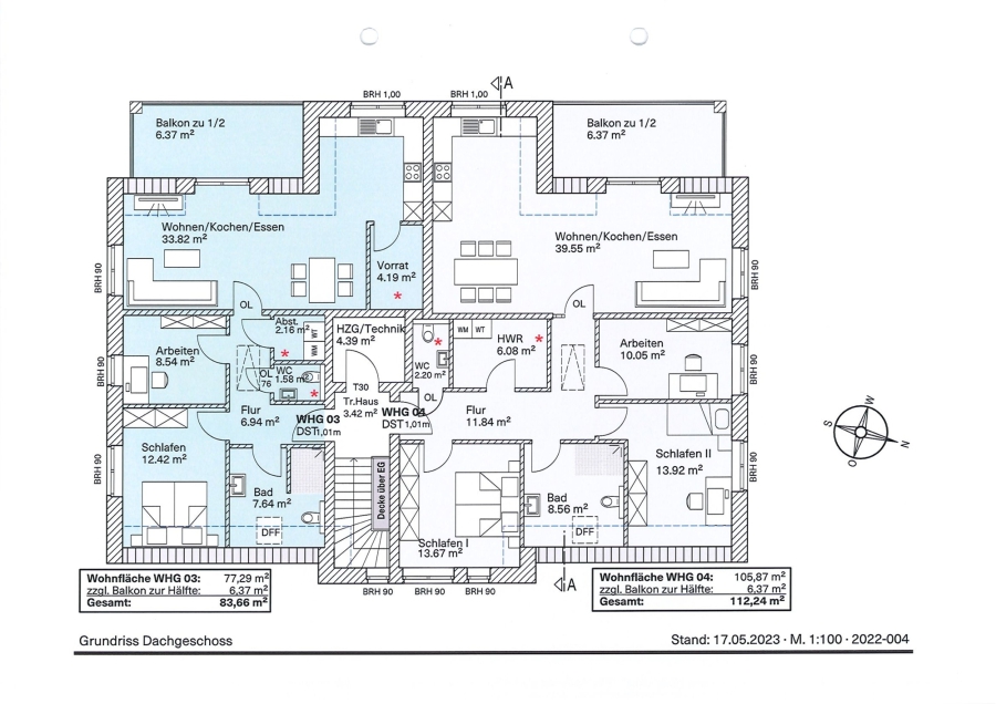
Dachgeschoss:
Wohnung 3: Verkauft!
Wohnung 4: 4 Zimmer | ca. 112 m² | € 429.000,- inkl. Maler- und Bodenbelagsarbeiten

Die Bauleistungsbeschreibung des Bauträgers ist maßgeblich für den Lieferumfang, welche wir Ihnen bei näherem Interesse gerne zur Verfügung stellen.

Beim Kauf fällt für den Käufer keine weitere Provision an!

Profitieren Sie von attraktiven Zinssätzen der KfW-Bank:

https://www.kfw.de/inlandsfoerderung/Privatpersonen/Neubau/F%C3%B6rderprodukte/Wohneigentumsprogramm-(124)/

Das Projekt erreicht die Stufe "Klimafreundliches Wohnen" (ohne QNG-Zertifikat).

Lage

Idyllisch und ländlich – so kann man Heiligenrode, Teil der Großgemeinde Stuhr südlich von Bremen gehört, mit Sicherheit bezeichnen.

Für Menschen, die gerne im Grünen wohnen, im Wald spazieren gehen oder einfach nach Feierabend aus der Stadt heraus in die Natur möchten, ist dieser kleine Ort absolut richtig. Mit den kulturellen Angeboten rund um das Mühlen-Ensemble und vielfältigen Freizeitmöglichkeiten hat Heiligenrode einiges zu bieten.
In Groß Mackenstedt befinden sich diverse Einkaufsmöglichkeiten. Vom Baumarkt über einen großen Supermarkt, Schnellrestaurants bis hin zum Elektronikgeschäft oder Möbelladen – hier sind Sie gut versorgt.

Für Pendler in Richtung Bremen ist eine schnelle Anbindung über die A1 oder über Alt-Stuhr/Moordeich gegeben. Binnen 20 Minuten reichen Sie die Bremer Innenstadt.

Kindergarten und die Grundschule sind vor Ort, weiterführenden Schulen in Stuhr-Brinkum (Schulbus vorhanden).

Grundschule 1,20 km | Realschule 5,30 km | Gymnasium 5,30 km 
Google Maps

Mit dem Laden der Karte akzeptieren Sie die Datenschutzerklärung von Google.
Mehr erfahren

Karte laden

Die dargestellte Position der Immobilie ist nur eine ungefähre Angabe.

Kontaktdaten

Direktanfrage

 SSL-verschlüsselt