Dachgeschosswohnung in Syke zu verkaufen (plus ausgebauten Spitzboden)

28857 Syke, Dachgeschosswohnung zum Kauf

Energieausweis

  • Energieausweistyp
    Verbrauchs­ausweis
  • Ausstellungsdatum
    ab dem 1.5.2014
  • Gültig bis
    08.02.2034
  • Gebäudeart
    Wohngebäude
  • Baujahr lt. Energieausweis
    1980
  • Primärenergieträger
    Gas
  • Endenergie­verbrauch
    116,30 kWh/(m²·a)
  • Energie­effizienz­klasse
    D
0 25 50 75 100 125 150 175 200 225 250+ H G F E D C B A A+ H G F E D C B A A+ Endenergieverbrauch 116,30 kWh/(m²·a)

Objektdaten

  • Objekt ID
    2025_570
  • Objekttypen
    Dachgeschosswohnung, Wohnung
  • Adresse
    28857 Syke
  • Wohnfläche ca.
    71,65 m²
  • Zimmer
    2
  • Schlafzimmer
    3
  • Badezimmer
    1
  • Balkone
    1
  • Heizungsart
    Zentralheizung
  • Wesentlicher Energieträger
    Gas
  • Baujahr
    1980
  • Zustand
    gepflegt
  • Status
    vermietet
  • Garage:
    1 Stellplatz
  • Käufer­provision
    Prov. 3,57 % v. Kaufpreis inkl. der gesetzlichen MwSt.
  • Kaufpreis
    162.000 EUR

Ausstattung / Merkmale

  • Balkon
  • Dachboden
  • Dusche
  • Einbauküche
  • Fahrradraum
  • Keller

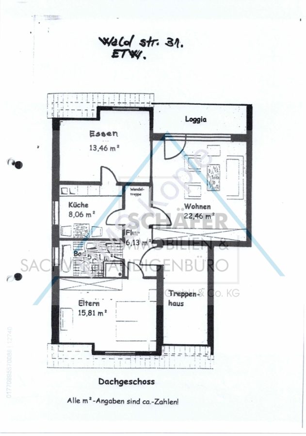
Objekt­beschreibung

Beschreibung

In zentraler Lage befindet sich diese Dachgeschosswohnung in Syke.
Die Wohnung verfügt über ein Wohnzimmer mit Zugang zum Balkon, eine Küche mit Einbauküche, ein Schlafzimmer und ein Bad mit Dusche.
Der Dachboden ist ausgebaut, hier befinden sich zwei weitere Zimmer (zzgl. 22,69 m²).
Die Zentralheizung wurde vor ca. 3 Jahren erneuert, das Bad vor ca. 10 Jahren und auch die Fenster wurden bereits ausgetauscht.
Eine Garage gehört der Wohnung an.
Derzeit ist die Wohnung vermietet.
Gerne vereinbaren Sie telefonisch einen Besichtigungstermin mit uns.

Ausstattung

Ausstattungsmerkmale:
- Dachgeschosswohnung
- Dachboden ausgebaut (2 weitere Zimmer)
- Küche mit Einbauküche
- Bad mit Dusche
- Bodenbeläge: Laminat, Fliesen, Teppich
- Balkon
- Garage
- Kellerraum, Fahrradkeller

Sonstige Informationen

Alle Angebote sind freibleibend. Eine Gewähr für die Richtigkeit u. Vollständigkeit von Angaben übernehmen wir nicht. Die mit dem Verkauf verbundenen Nebenkosten (Notar- und Gerichtskosten, Grunderwerbsteuer sowie die Vermittlungsprovision in Höhe von 3,57 % inkl. gesetzl. Mehrwertsteuer, berechnet vom Gesamtkaufpreis) trägt der Erwerber.
Mit dem Verkäufer wurde ein Maklerauftrag in gleicher Höhe abgeschlossen.

Eine Besichtigung vereinbaren Sie bitte mit uns.
Büroöffnungszeiten:
Montag bis Donnerstag: 8:30 bis 12:30 Uhr und 14:00 bis 17:00 Uhr.
Freitag: 8:30 bis 12:30 Uhr und 14:00 bis 16:00 Uhr.

Lage

Die Stadt Syke ist die größte Stadt im Landkreis Diepholz und liegt etwa 19 km südlich von Bremen.
Die sogenannte „Stadt im Grünen“ bietet mit den großen Staatsforsten Friedeholz und Westermark gute Erholungsmöglichkeiten.
Syke ist über die B 6 zwischen Bremen und Hannover oder über die BAB 1 ( Hansalinie ) zu erreichen. Die Bahnlinie Bremen – Osnabrück ist ca. 2 km vom Stadtzentrum entfernt.
Die sehr gute Infrastruktur umfasst Kleinkinderbetreuung, alle Schulformen, Hallenbad, Sportstätten, Bücherei, Theater und ein hervorragendes Einkaufsangebot.

Die dargestellte Position der Immobilie ist nur eine ungefähre Angabe.

Kontaktdaten

Direktanfrage

* Pflichtangaben
 SSL-verschlüsselt