Wohlfühlen in Varrel – Erdgeschosswohnung mit Garten!

28816 Stuhr, Erdgeschosswohnung zum Kauf

Energieausweis

  • Energieausweistyp
    Verbrauchs­ausweis
  • Ausstellungsdatum
    ab dem 1.5.2014
  • Gültig bis
    09.09.2035
  • Gebäudeart
    Wohngebäude
  • Baujahr lt. Energieausweis
    2000
  • Primärenergieträger
    Gas
  • Endenergie­verbrauch
    87,20 kWh/(m²·a)
  • Energie­effizienz­klasse
    C
0 25 50 75 100 125 150 175 200 225 250+ H G F E D C B A A+ H G F E D C B A A+ Endenergieverbrauch 87,20 kWh/(m²·a)

Objektdaten

  • Objekt ID
    LS041K
  • Objekttypen
    Erdgeschosswohnung, Wohnung
  • Adresse
    (Stuhr-Varrel)
    28816 Stuhr
    Niedersachsen
  • Etage
    EG
  • Wohnfläche ca.
    121 m²
  • Nutzfläche ca.
    31 m²
  • Balkon-/Terrassen­fläche ca.
    28 m²
  • Zimmer
    4
  • Schlafzimmer
    3
  • Badezimmer
    1
  • Terrassen
    1
  • Heizungsart
    Etagenheizung, Fußbodenheizung
  • Wesentlicher Energieträger
    Gas
  • Umgebung
    Grundschule: 0,3 km
    Realschule: 3,8 km
    Gymnasium: 2,5 km
    Fernbahnhof: 2,6 km
    Autobahn: 1,2 km
    Bus: 0,3 km
    Einkaufen: 2,7 km
    Gaststätten: 2,0 km
  • Baujahr
    2000
  • Zustand
    gepflegt
  • Verfügbar ab
    01.06.2026
  • Garage:
    2 Stellplätze
  • Käufer­provision
    Im Erfolgsfall sind vom Käufer 3,57 % inkl. MwSt. vom Kaufpreis zu zahlen. Mit dem Verkäufer wurde ein Maklerauftrag in gleicher Höhe abgeschlossen.
  • Kaufpreis
    295.000 EUR

Ausstattung / Merkmale

  • Einbauküche
  • Garage
  • Garten/Gartennutzung
  • Kein Keller
  • Seniorengerecht
  • Terrasse

Objekt­beschreibung

Beschreibung

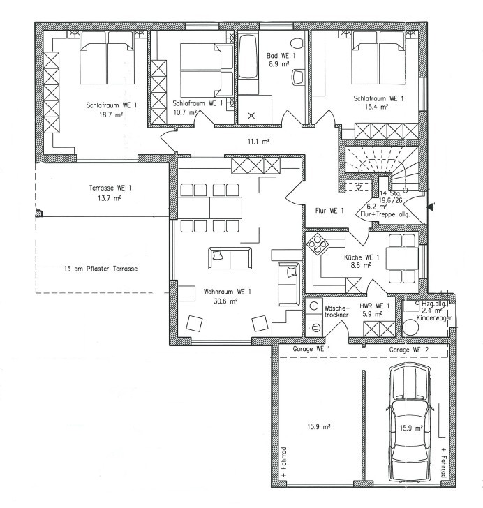
Sie suchen eine ebenerdige Wohnung in Stuhr-Varrel? Dann werden Sie hier fündig! In sehr beliebter Lage erstreckt sich diese Erdgeschosswohnung in einem Zweifamilienhaus aus dem Baujahr 2000 über rund 121 m² Wohnfläche.

Über den gemeinsamen Hauseingang erreichen Sie die Wohnungstür. Ein Wohnungsflur in Z-Form führt Sie direkt in alle Räume der Wohnung. Zur Rechten finden Sie die Garderobe, welche genügend Platz für alle Schuhe und Jacken bietet. Zur Linken gelangen Sie in die separate Küche. Diese ist bereits mit einer schicken Einbauküche versehen, die Fronten wurden erst 2020 komplett neu lackiert. Ebenfalls wurden die E-Geräte 2024 erneuert. Auf der linken Seite ist genügend Platz für einen großzügigen Frühstückstisch. Wer es lieber offen mag, kann mit einer Öffnung die Küche und das Wohnzimmer verbinden.

Das angrenzende Wohnzimmer bietet genügend Platz, jede Wohnlandschaft unterzubringen und ist durch die bodentiefen Fensterelemente besonders lichtdurchflutet. Von hier aus haben Sie zudem Zugang zur überdachten Terrasse, die ein besonderes Highlight darstellt. Im Sommer grillen, im Winter trotz Schnee draußen sitzen, denn hier ist genügend Platz für Familie und Freunde. Um die Terrasse herum ist es überall grün, denn zur Wohnung gehört auch der große Garten. Dieser ist mit viel Rasenfläche aktuell pflegeleicht angelegt und bietet viel Raum für kreative Gartenfans.

Dem Flur weiter folgend gelangen Sie zuerst zum Schlafzimmer - hier lassen sich ein großes Bett und eine drei Meter Schrankwand wunderbar stellen.

Das Badezimmer wurde erst 2022 komplett modernisiert und erstrahlt daher in ganz neuem - modernen Design. Dunkler Vinylbodenbelag in fugenlosem Design bilden einen schicken Kontrast zu den hellen Wänden. Das Bad ist mit Wanne, Dusche und Handtuchheizkörper ausgestattet und lässt somit keine Wünsche offen. Für eine angenehme Wärme sorgt hier die Fußbodenerwärmung.

Zwei weitere Zimmer liegen im hinteren Bereich der Wohnung. Diese lassen sich flexibel als Büro, Kinder- oder Gästezimmer nutzen, ganz nach Ihren Vorstellungen.

Zwei Garagen runden dieses tolle Angebot ab. Sie lassen sich zum Teil elektrisch öffnen und sind direkt mit dem Hauswirtschaftsraum verbunden. Sie können also immer trockenen Fußes nach Hause kommen.
Mehrere PV-Module wurden an der Garage angebracht und entsprechende Speicher verbaut, um Ihren Stromverbrauch gering zu halten.

Sie suchen nach einer barrierearmen Eigentumswohnung in Stuhr-Varrel? Dann sollten Sie sich diese Wohnung anschauen! Gerne stehen wir nach Download des Exposés – in diesem finden Sie die genaue Lage – für einen Termin zur Besichtigung zur Verfügung.

Ausstattung

- schicke Einbauküche mit lackierten Fronten aus 2020
- Backofen, Geschirrspüler und Kühlschrank aus 2024
- Vollbad mit Fenster und Fußbodenerwärmung aus 2022
- Fliesen in Küche, Bad und Flur
- Holztüren und Zargen
- 2-fach verglaste weiße Kunststofffenster aus dem Baujahr
- große überdachte Terrasse
- pflegeleichter Garten rund um das Haus
- Hauswirtschaftsraum mit Waschmaschinenanschluss
- zwei Garagen mit Zugang zum HWR
- zwei mögliche Außenstellplätze vor den Garagen
- Mini-PV-Anlage
- Gasetagenheizung aus 2012 mit Warmwasseraufbereitung
- weiße Putzfassade
- Betondachpfannen
- gemeinsamer Eingangsbereich mit der Obergeschosswohnung

Sonstige Informationen

Es liegt ein Energieverbrauchsausweis vor.
Dieser ist gültig bis 9.9.2035.
Endenergieverbrauch beträgt 87.20 kwh/(m²*a).
Wesentlicher Energieträger der Heizung ist Gas.
Das Baujahr des Objekts lt. Energieausweis ist 2000.
Die Energieeffizienzklasse ist C.

Die jährliche Grundsteuer beträgt laut Bescheid aus 2025 247,52 €.

SCHON GEWUSST?
Wir veröffentlichen unsere Immobilienangebote auf unserer Website bereits bis zu einer Woche vor der Vermarktung in den bekannten Immobilien-Portalen. Dies findet – falls noch erforderlich – erst später statt.

Sie möchten künftig kein neues Angebot mehr verpassen? Ein Anruf oder eine E-Mail mit Ihrem Suchwunsch genügt. Als registrierter Kunde erhalten Sie alle Exposés zu passenden Immobilien bereits VOR offiziellem Vermarktungsstart!

0421-95700810, anfrage@hechler-twachtmann.de
Dieser Service ist natürlich kostenfrei und unverbindlich.

Der Makler behält sich ausdrücklich vor für beide Seiten vermittelnd (auch provisionspflichtig) tätig zu werden.

Lage

Für Bremer, die gerne ländlich wohnen wollen, ist die Gemeinde Stuhr ein begehrter Wohnort. Der Ortsteil Varrel liegt unmittelbar zwischen Bremen-Huchting und Delmenhorst. Ob mit dem Bus, Rad oder Auto – Sie gelangen überall schnell hin und wohnen trotzdem umgeben von Wiesen und Feldern.
Gut angeschlossen an das Bremer Nahverkehrsnetz sind das Roland-Center in Huchting und die Bremer City schnell zu erreichen. Auch die Autobahnauffahrten zur A1 Richtung Hamburg und Osnabrück befinden sich in unmittelbarer Nähe.

Für den täglichen Bedarf ist ebenfalls gesorgt – kleine und große Einkaufsmärkte liegen nur unweit entfernt. Grundschule und weiterführende Schulen befinden sich ebenso vor Ort, wie Ärzte und Sportvereine.

Die Wohnung liegt in einer verkehrsberuhigten Seitenstraße.

Kindergarten 470 m | Grundschule 340 m | Realschule 3,75 km | Gymnasium 2,48 km | Fernbahnhof 2,58 km | Autobahn 1,24 km | Bus 330 m | Einkaufsmöglichkeiten 2,69 km | Gaststätten 2,03 km 

Die dargestellte Position der Immobilie ist nur eine ungefähre Angabe.

Kontaktdaten

Direktanfrage

* Pflichtangaben
 SSL-verschlüsselt