Kapitalanlage in Kirchweyhe: Vermietete 2-Zimmer-Wohnung mit ca. 73 m², Garten & Tiefgarage

28844 Weyhe, Erdgeschosswohnung zum Kauf

Energieausweis

  • Energieausweistyp
    Bedarfs­ausweis
  • Ausstellungsdatum
    29.04.2015
  • Gültig bis
    29.04.2035
  • Gebäudeart
    Wohngebäude
  • Baujahr
    2015
  • Primärenergieträger
    Erdgas schwer
  • Endenergie­bedarf
    69,20 kWh/(m²·a)
  • Warmwasser enthalten
    ja
  • Energie­effizienz­klasse
    B
0 25 50 75 100 125 150 175 200 225 250+ H G F E D C B A A+ H G F E D C B A A+ Endenergiebedarf 69,20 kWh/(m²·a)

Objektdaten

  • Objekt ID
    8267
  • Objekttypen
    Erdgeschosswohnung, Wohnung
  • Adresse
    28844 Weyhe
  • Lage
    1a
  • Wohnfläche ca.
    73 m²
  • Kellerfläche ca.
    4 m²
  • Zimmer
    2
  • Schlafzimmer
    1
  • Badezimmer
    1
  • Terrassen
    1
  • Heizungsart
    Zentralheizung
  • Wesentlicher Energieträger
    Gas
  • Baujahr
    2015
  • Zustand
    gepflegt
  • Status
    vermietet
  • Verfügbar ab
    nach Vereinbarung
  • Garage:
    1 Stellplatz
  • Provisionspflichtig
    Ja
  • Käufer­provision
    2,975 inkl. MwSt.
  • Kaufpreis
    260.000 EUR

Ausstattung / Merkmale

  • Barrierefrei
  • Dusche
  • Einbauküche
  • Garten/Gartennutzung
  • Keller
  • Kunststoffboden
  • Personenaufzug
  • Seniorengerecht
  • Terrasse
  • Tiefgarage

Objekt­beschreibung

Beschreibung

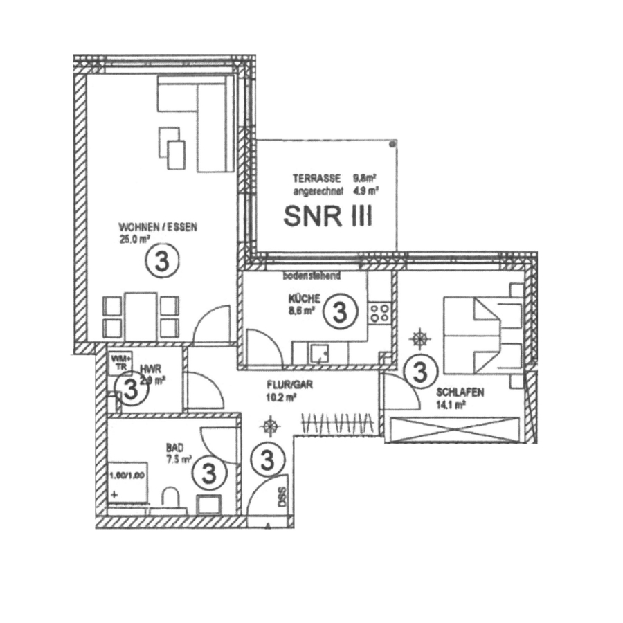
In zentraler Lage von Kirchweyhe steht diese gut vermietete 2-Zimmer-Erdgeschosswohnung in einem modernen Mehrfamilienhaus zum Verkauf.

Das Raumangebot mit einer Wohnfläche von ca. 73 m² umfasst einen hellen Wohnbereich mit Zugang zur überdachten Terrasse und eigenem Gartenanteil, ein Schlafzimmer sowie eine separate Küche mit moderner Einbauküche. Das Badezimmer ist mit einer ebenerdigen Dusche ausgestattet; zusätzlich steht ein Hauswirtschaftsraum mit Anschlüssen für Waschmaschine und Trockner zur Verfügung.

Ein Kellerraum, ein Tiefgaragenstellplatz sowie ein Außenstellplatz vervollständigen das Angebot.

Ausstattung

- Barriefrei
- Einbauküche
- Terrasse mit Gartenanteil
- Kellerraum
- Tiefgaragenstellplatz
- ebenerdige Dusche

Sonstige Informationen

Nettokaltmiete p. M. € 900,20
Nebenkostenvorauszahlung p. M. € 190,00

Lage

Mitten in Kirchweyhe finden Sie diese tolle Wohnung in einem äußerst gepflegten Mehrfamilienhaus.

Der Marktplatz mit all seinen darauf befindlichen Einkaufsmöglichkeiten, Restaurants und vielen mehr ist in nur wenigen Minuten bequem zu Fuß oder mit dem Fahrrad zu erreichen.

Auch der Kirchweyher Bahnhof mit guten Anbindungen nach Bremen und Osnabrück ist in kürzester Zeit zu erreichen.

Die dargestellte Position der Immobilie ist nur eine ungefähre Angabe.

Kontaktdaten

Hauke Schröder, Hirdler Immobilien & Baubetreuung Inh. Dipl.Ing (FH)Hauke Schröder e.K.

Direktanfrage

* Pflichtangaben
 SSL-verschlüsselt