Charmante 3-Zi.-DG-Wohnung mit Balkon in exponierter Lage

28816 Stuhr, Etagenwohnung zum Kauf

Energieausweis

  • Energieausweistyp
    Verbrauchs­ausweis
  • Ausstellungsdatum
    ab dem 1.5.2014
  • Gültig bis
    30.08.2028
  • Gebäudeart
    Wohngebäude
  • Baujahr lt. Energieausweis
    1986
  • Primärenergieträger
    Erdgas schwer
  • Endenergie­verbrauch
    108,00 kWh/(m²·a)
  • Energie­effizienz­klasse
    D
0 25 50 75 100 125 150 175 200 225 250+ H G F E D C B A A+ H G F E D C B A A+ Endenergieverbrauch 108,00 kWh/(m²·a)

Objektdaten

  • Objekt ID
    RK045K
  • Objekttypen
    Etagenwohnung, Wohnung
  • Adresse
    (Stuhr-Brinkum)
    28816 Stuhr
    Niedersachsen
  • Etage
    1
  • Wohnfläche ca.
    73 m²
  • Nutzfläche ca.
    45 m²
  • Zimmer
    3
  • Schlafzimmer
    2
  • Badezimmer
    1
  • Balkone
    1
  • Heizungsart
    Zentralheizung
  • Wesentlicher Energieträger
    Gas
  • Umgebung
    Grundschule: 0,3 km
    Realschule: 0,9 km
    Gymnasium: 0,9 km
  • Baujahr
    1986
  • Zustand
    gepflegt
  • Verfügbar ab
    nach Vereinbarung
  • Stellplatz:
    1 Stellplatz
  • Käufer­provision
    Im Erfolgsfall sind vom Käufer 2,95 % inkl. MwSt. vom Kaufpreis zu zahlen. Mit dem Verkäufer wurde ein Maklerauftrag in gleicher Höhe abgeschlossen.
  • Kaufpreis
    219.000 EUR

Ausstattung / Merkmale

  • Außenstellplatz
  • Balkon
  • Einbauküche
  • Gäste-WC
  • Keller

Objekt­beschreibung

Beschreibung

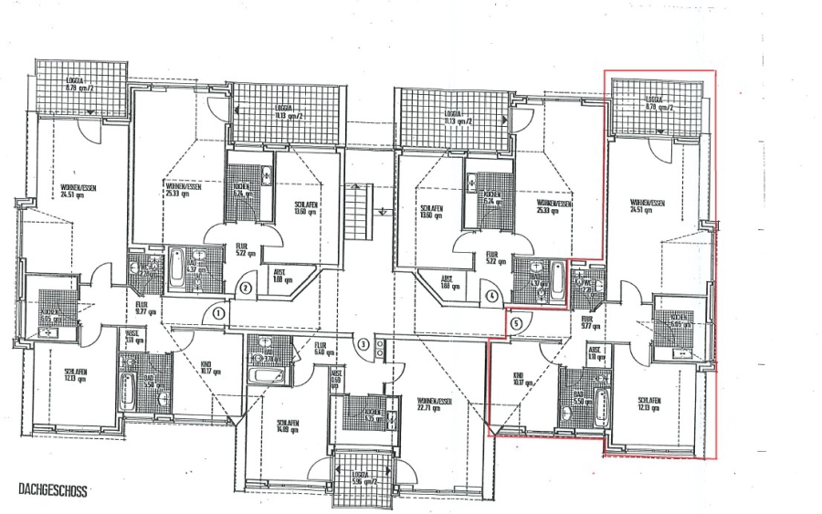
Diese geschmackvolle und charmante 3-Zimmer-Dachgeschosswohnung befindet sich in einem ruhigen Wohn- und Geschäftshaus in zentraler Lage von Stuhr-Brinkum, nur wenige Minuten vom Ortskern entfernt.

Über das ordentliche und gut instand gehaltene Treppenhaus erreichen Sie die Wohnung im Dachgeschoss.
Der gepflegte Flur empfängt Sie und bildet den zentralen Zugang zu sämtlichen Räumen – die durchdachte Grundrissgestaltung sorgt für eine angenehme und praktische Raumaufteilung.

Die Wohnung verfügt über zwei gut geschnittene Zimmer, die sich flexibel als Schlaf-, Kinder-, Gäste- oder Arbeitszimmer nutzen lassen. Das innenliegende Gäste-WC aus dem Baujahr präsentiert sich gepflegt und funktional in hellen Tönen.

Das Herzstück der Wohnung ist der großzügige und lichtdurchflutete Wohn- und Essbereich. Die offene Gestaltung schafft eine einladende Atmosphäre mit viel Raum für individuelle Einrichtungsideen. Von hier aus gelangen Sie auf den gemütlichen Balkon, der zum Entspannen und Verweilen einlädt.
Die direkt angrenzende Küche ist mit einer hochwertigen Einbauküche ausgestattet und bietet reichlich Stauraum sowie optimale Arbeitsflächen.

Ein besonderes Highlight ist das moderne Duschbad, das im Jahr 2021 umfassend modernisiert wurde und sich heute in zeitgemäßem, stilvollem Design präsentiert.

Praktischen Stauraum bietet ein kleiner Abstellraum innerhalb der Wohnung. Zusätzliche Abstellfläche finden Sie auf dem Spitzboden, der bequem über eine Einschubtreppe vom Flur aus erreichbar ist.

Abgerundet wird das Angebot durch einen eigenen Kellerraum, einen gemeinschaftlichen Waschkeller mit separatem Waschmaschinenanschluss sowie einen Trockenraum. Ein PKW-Außenstellplatz direkt am Haus steht ebenfalls zur Verfügung.

Diese Wohnung bietet ein komfortables Wohnambiente in ruhiger Lage und eignet sich ideal für Singles, Paare oder kleine Familien, die Wert auf eine gepflegte Umgebung und eine durchdachte Raumaufteilung legen.

Wenn Sie ein Zuhause suchen, das Funktionalität, modernen Wohnkomfort und ein Gefühl von Geborgenheit vereint, sollten Sie diese Immobilie unbedingt kennenlernen.

Wir freuen uns auf Ihre Kontaktaufnahme und stehen Ihnen gerne für ein persönliches Gespräch oder einen individuellen Besichtigungstermin zur Verfügung.

Ausstattung

- helle Einbauküche
- Kunststofffenster mit Isoverglasung aus den 1990er Jahren, Schiebeterrassenelement aus 2002, Holzfenster mit Isoverglasung im Essbereich aus dem Baujahr
- weiße Holztüren und Zargen
- Teppichboden in den Wohnräumen und Flur
- Gäste-WC aus dem Baujahr
- Duschbad aus 2021
- Balkon
- Abstellfläche auf dem Dachboden
- Kellerraum
- Wasch- und Trockenaum
- PkW-Stellplatz

Sonstige Informationen

Es liegt ein Energieverbrauchsausweis vor.
Dieser ist gültig bis 30.8.2028.
Endenergieverbrauch beträgt 108.00 kwh/(m²*a).
Wesentlicher Energieträger der Heizung ist Erdgas schwer.
Das Baujahr des Objekts lt. Energieausweis ist 1986.
Die Energieeffizienzklasse ist D.

Laut Wirtschaftsplan 2025 beträgt die monatliche Hausgeldzahlung für die Wohnung 345,00 EUR. Davon entfallen 51,60 EUR auf die Instandhaltungsrücklage.
Zusätzlich ist jährlich die Grundsteuer in Höhe von 122,72 EUR zu zahlen. Die Kosten für den eigenen Stromverbrauch kommen ebenfalls hinzu.

SCHON GEWUSST...?

Wir veröffentlichen unsere Immobilienangebote zuerst auf unserer Website. Die Vermarktung in den bekannten Immobilienportalen findet – sofern erforderlich – bis zu einer Woche später statt.
Alle Immobilien finden Sie auf www.hechler-twachtmann.de. Sie möchten zukünftig kein Angebot verpassen? Dann legen Sie einfach ein Suchprofil an – ebenfalls online auf unserer Website.

Dieser Service ist kostenfrei und unverbindlich. Es gelten die AGB's.

Lage

Vor den Toren Bremens ist der Ortsteil Brinkum in der Gemeinde Stuhr ein begehrter Wohnort.
Südlich des Stadtrands gelegen sind die Innenstadt sowie umliegende Stadtteile schnell zu erreichen. Die Autobahnauffahrten zur A1 in Richtung Hamburg und Osnabrück befinden sich in unmittelbarer Nähe. Durch den Busbahnhof (ZOB Brinkum) und den Verkehrsverbund Bremen & Niedersachsen (VBN) bzw. die Bremer Straßenbahn AG (BSAG) ist Brinkum optimal an das öffentliche Nahverkehrsnetz angebunden.

Für den täglichen Bedarf ist vor Ort gesorgt. Kleinere Läden erreichen Sie bequem zu Fuß oder mit dem Rad – zu größeren Einkaufsmärkten, Einrichtungsgeschäften, einem Baumarkt sowie dem Ochtum Park mit zahlreichen Outlets gelangen Sie in wenigen Minuten mit dem Auto.

Kindergärten, Grundschule und weiterführende Schulen befinden sich ebenso vor Ort, wie Ärzte und Apotheken, Volkshochschule und Bibliothek. Diverse Vereine bieten ein attraktives Sport- und Freizeitangebot.

Kindergarten 200 m | Grundschule 300 m | Realschule 900 m | Gymnasium 900 m 

Die dargestellte Position der Immobilie ist nur eine ungefähre Angabe.

Kontaktdaten

Regina Koch, Hechler & Twachtmann Immobilien GmbH

Direktanfrage

* Pflichtangaben
 SSL-verschlüsselt